Проекты
Кроме типа здания нужно учитывать и проект, по которому оно было выполнено. В хрущевских квартирах стандартные комнаты были проходными, крупнейшая из них находилась рядом с кладовой, из которой, в свою очередь, можно было выйти только в спальню. Серия 1-335, а также К-7 отличается малой величиной кухонного пространства, миниатюрностью прихожих. Высота потолков в домах 335-й группы составляет 255 см.


У К-7 она может достигать 259 см, балконы не предусматривались. В серии 1-447 план предусматривает балконы не всегда, часто без них оставлены угловые квартиры. Основной конструкционный материал – кирпич.
С 1960 по 1975 годы трехкомнатные квартиры в кирпичных пятиэтажках обычно имели общую площадь 44 кв. м, жилую – 32 м2, а на долю кухни оставалось 5,5 или 6 кв. м. Серия 1-464 подразумевала использование только совмещенных санузлов, общая площадь составляла от 55 до 58 кв. м, на долю жилых помещений приходилось от 39 до 45 кв. м.


В 3х-комнатных квартирах современных домов, в отличие от старых пятиэтажных, санитарные узлы раздельные. Жилые помещения, кухни и ванные комнаты стали больше. Редко можно встретить трехкомнатную квартиру, где не было бы балкона или лоджии. Встречаются самые разные размеры – и 70-76, и 80-100 кв. м и даже больше.
Квартиры в девятиэтажных домах 80-й серии, строившиеся с середины 1970-х годов, подразумевали наличие кухонь площадью от 7,5 кв. м, при этом только одна комната обособлена, две другие – проходные. С конца 1980-х годов площадь кухонного помещения достигает 9 кв. м, все комнаты становятся автономными друг от друга. Разница между 83 и 90-й сериями заключается исключительно в конфигурации балкона – треугольной в первом случае, прямой или чуть скошенной во втором.


Серия 90А, появившаяся уже в 2000-х, отличается кухнями площадью 14 кв. м, плюс оснащением сразу двумя лоджиями.
В старом жилом фонде довольно часто встречается чешская планировка 3-комнатной квартиры. Она свойственна для жилья, размещаемого в домах от 9 до 12 этажей высотой, построенных не раньше 1970 и не позже 1990 года. Потолки низкие, не достигают и 250 см, балконов два – прямой и косой. Строились такие здания и из кирпича, и из железобетона, и из керамзитобетона. Площадь квартиры составляет обычно 60-64 кв. м.
Выбор стиля и цветовой палитры в комнату
Важным этапом при ремонте квартиры является выбор стиля. Выделяют два основных:
- современный;
- классический.
- Современный стиль богат разновидностями. Особенности его в свободном пространстве, сдержанных цветах, минимуме декоративных элементов. Вместе с тем должен быть многофункциональным и совмещать в себе различные стили с преобладанием какого-то определенного.
- Классический. Всегда востребован. Отличается королевским размахом. Когда речь идет о классическом стиле, то нужно помнить, что для него характерно все натуральное и дорогое. Если дерево, то из ценных пород. Если плитка, то мраморная. Такой стиль подойдет далеко не каждому. В основном для тех, кто привык жить на широкую ногу.

Интересный стиль, а вместе с тем для любителей народов – этнический. Такой дизайн редко встретишь, но оригинальности и выразительности может позавидовать даже современный стиль. Из распространенных нынче стилей пользуются популярностью авангард, модерн, хай-тек, брутализм, экологический.

Почему так важна инсоляция
Кроме границ с реальными размерами и расстоянием до соседей и дорог, планировка участка должна отображать инсоляцию – количество солнечной энергии, поступающее на загородный участок.
Антон ЛюбавинУчастник FORUMHOUSE
Инсоляция нужна, чтобы понять, как расположить дом, другие строения, где высаживать растения. Она показывает, на какой стороне участка солнышко всходит, где заходит и в каком месте будет больше количество света
Кстати для дома – очень важно, чтобы в кухню утром заходило солнышко
Узнать, как ведет себя светило по отношению к участку можно или понаблюдав в течение дня и сделав соответствующие пометки на плане, или с помощью специального сервиса. Для генерации мастер-плана с инсоляцией потребуется ввести кадастровый номер, но если межевания не проводили и четких границ в базе Росреестра нет, сервис план не сгенерирует. Как и остальные подобные ресурсы, завязанные на базу этого ведомства. Если же данные есть, получится примерно следующее.
Не учитывать освещенность при планировке территории дачного участка – еще одна ошибка, наиболее губительная для садоводства.
ТимыЧ Участник FORUMHOUSE
Спустя десятилетие садоводства стало понятно, что основные ошибки связаны с неправильными посадками. Неправильность заключается в том, что я не учитывал освещенность. Какие-то растения хорошо растут в полутени, а каким то, необходимо много-много света. Поэтому считаю, чтобы не таскать растения по участку, надо составить схему его освещения, с учетом дома, бани и других будущих или существующих построек.
Виды планировки квартир
Какие бывают виды квартир?
Так как единого планировочного базиса концепции квартир в РФ не предусмотрено, то вариаций данного типа жилья имеется немалое количество.
В общем смысле, под «видом планировки» понимается совокупность определенных характеристик, присущих большой группе квартир. На территории нашей страны выделяют ряд основных видов. Среди них есть и типовые планировки. Перечень таковых следующий:
- «Сталинка». Данный вид квартир начал эксплуатироваться в период правления Иосифа Виссарионовича Сталина (в 45-60-е годы прошлого столетия). Структурно такое жилье имеет высокие потолки (до 3 метров) и достаточно большую площадь. Располагаются сталинки в 2-4-этажных домах. Основные характеристики у них таковы:
- крупногабаритность;
- совмещенность санузла;
- деревянный базис перекрытий (не всегда, но часто);
- расположение в небольших многоквартирных домах;
- малые кухни.
Данный вид, благодаря своим размерам, очень ценится на рынке недвижимости, поэтому стоимость подобных квартир обычно высока.
- «Хрущевка». Данный вид схемы квартиры был введен в эксплуатацию в 60-70-е годы прошлого столетия Никитой Сергеевичем Хрущевым, тогдашнем генсекретарем государственного аппарата. По своей структуре хрущевки представляют собой жилье небольшой площади, располагающееся в пятиэтажных домах. Согласно официальной информации, подобные квартиры рассчитаны на 25 лет эксплуатации, вследствие чего большая их часть на данный момент существенно изношена, либо находится в аварийном состоянии. Стандартная хрущевка имеет следующие характеристики:
- малогабаритность;
- совмещенность санузла;
- отсутствие изоляции комнат;
- большинство стен в таком жилье – несущие;
- малые кухни.
Какая планировка дома наиболее удобна и выгодна?
Квартиры с такой планировкой являются достаточно дешевыми, вследствие чего довольно популярны среди граждан РФ.
- «Новая». Подобное жилье представляет собой улучшенную версию ранее упомянутых видов. Впервые квартиры с новой планировкой стали появляться в конце 20 и начале 21 веков. Основные характеристики у них следующие:
- крупногабаритность;
- раздельный санузел;
- инновационные принципы построения;
- большая кухня.
Плюсы и минусы
Современное жилье экономкласса с четырехкомнатными квартирами почти не строится. Чем более бюджетен сегмент, тем большим спросом пользуются «однушки» и «двушки». «Трешки» и 4-комнатные большим спросом пользуются там, где жилье более дорогое.
Площадь в них небольшая, но комнат достаточно даже для большой семьи.
Четырехкомнатная квартира – плюсы:
-
у каждого члена семьи есть своя комната;
-
много окон, которые выходят на разные стороны;
-
есть возможность выделить комнату для кабинета, тренажерного зала или библиотеки.
Минусы касаются денег:
-
цена на квартиры высокая;
-
коммунальные платежи соответствуют площади, значит, тоже немаленькие;
-
ремонт обойдется недешево.
Варианты планировки в зависимости от помещения
Планировка 4-х комнатной квартиры разнится от большинства других различными помещениями и их количеством. Да и комнаты бывают отдельными или проходными, что не часто встретишь в двухкомнатных квартирах.
Дизайн четырехкомнатной квартиры в панельном доме
Существуют различные вариации плана квартир. Но основным для панельного дома является вариант с тремя отдельными спальнями, которые объединяет коридор. Как правило, одна из комнат больше других.
В хрущевке
Хрущевки как известно представляют собой маленькие комнаты, а именно: узкие прохожие, крошечных размеров кухни, ванная комната и туалет совмещены и низкие потолки. Однако и четырехкомнатные квартиры тоже встречаются.
Современному человеку вряд ли будет по душе 4 комнатная хрущевка, однако и ее обустроить будет интересно. 4 комнатная хрущевка, планировка которой будет представлена на фото.
В сталинке
Совершенно иначе обстоят дела в сталинских квартирах. Высокие потолки, более 3-х метров, широкие коридоры, раздельные туалетные и ванные комнаты, внушительных размеров кухни. А благодаря тому, что дома строились из кирпича они имеют хорошую звукоизоляцию и лучшую теплозащиту, чем панельные. Вот, где разгуляться можно дизайнеру.
Интересные примеры и лучшие варианты
Чтобы наглядно увидеть, какой бывает гармоничная и функциональная планировка квартиры в многоквартирном доме с учетом стилистики, можно обратиться к примерам дизайна представленной фотогалереи.
Пример свободного расположения всех необходимых функциональных зон: недостаток света в обеденной зоне можно компенсировать посредством обособленного потолочного освещения.




Рациональный пример компактного расположения предметов обустройства с узким коридором и компактной кухней: гостиная и спальня отличаются простором, в кухне недостаток места восполняется посредством барной стойки.


Необычный вариант компоновки квартиры с эркером: недостатком является узкий коридор, зонирование гостиной с обеденной зоной вполне удачно, для эркера отведено место под рабочую зону.



Прием рационального использования пространства с учетом конструктивных выступов стен: оригинальное размещение барной стойки вместо обеденного стола.

Стандартный план
Планировка 4-комнатной хрущёвки предусматривает следующие помещения:
- две спальни, расположенные в самой дальней зоне;
- третья комната – гостиная, являющаяся проходной для этих спален;
- четвёртая комната – ещё одна спальня, расположенная по соседству от кухни;
- кухня, ванная и туалет располагаются по соседству с прихожей, близко от входа;
- в конце прихожей по соседству с гостиной имеется гардеробный отсек.

Следующая исторически более поздняя разновидность многоэтажного дома – панельный 9-этажный дом, «брежневка» – обладает некоторыми отличиями от «хрущёвки». Спальни и гостиные, кухня и санузел расположены примерно так же, как и в 4-комнатных «хрущёвках», но отличаются по площади.
В Санкт-Петербурге и Москве за последние несколько лет выполняется программа реновации – старые «хрущёвки», многие из которых признаны аварийными, подлежат расселению и разборке. Взамен строительные компании по указу федеральных и местных властей возведут новостройки, в которых площадь комнат немного подрастёт. Кухни, санузлы и коридоры (включая прихожие) станут заметно больше.

Кирпичные «хрущёвки» и «брежневки», вне зависимости от числа комнат в квартирах, обладают меньшей продуваемостью и улучшенной звукоизоляцией.
Достоинства и недостатки таких домов
Построив для себя такой дом, владелец может воспользоваться следующими плюсами:
- Относительно небольшие затраты на строительство дома.
- Скромные затраты на проживание в нём.
- Для строительства достаточно выбрать участок небольшого размера.
- Более высокая прочность и надёжность здания.
- Качественная теплоизоляция.
- Планировка в таком доме делается максимально эргономично. Выбирая её, нужно ознакомиться с фото планировки 6 на 6, используемой в различных случаях.

При использовании таких проектов существуют следующие недостатки:
- Миниатюрный дом не подойдёт для проживания большой семьи.
- При росте численности жильцов имеются минимальные возможности для размещения большего числа людей.

Компактный уютный дом более привлекателен для тех, кто отдаёт предпочтение более скромному образу жизни.





















Особенности планировки двухкомнатной квартиры
Удобная планировка 2-х комнатной квартиры
Мы стремимся улучшать комфортабельные условия для собственного проживания, но квартиры, построенные по шаблону имеют массу недостатков. Их мы рассмотрим с вами немного позже, лишь перечислю их. Это может быть слишком длинный коридор или предельно узкий проход, совмещённый санузел, маленькое пространство кухни, низкие потолки, незначительный размер жилой площади.
Мы же с вами будем стремиться к тому, чтобы использовать пространство жилой площади рационально и экономно. В стандартной квартире всегда найдётся сложный участок, который нужно правильно обыграть в будущем проекте. В этом сможет помочь перепланировка, для которой предварительно составляется план с учётом всех плюсов и минусов квартиры, а также предпочтений жильцов.
Стильная, небольшая квартира
Начинаем с изучения документов
Совет Для начала тщательно изучаем документ с планом квартиры для выявления возможных минусов, нерационального использования пространства и дальнейшей корректировки этих дефектов.
Обычно перепланировка затевается в том случае, когда необходимо обеспечить индивидуальное пространство каждому жильцу квартиры. Если жилая площадь не может разделяться перегородками, то для создания зон можно использовать мебель, шторы и прочие декоративные изделия.
Один из интересных вариантов
Основные требования к жилым комнатам, кухне, туалету определяются количеством жильцов квартиры. Перед началом всех работ нужно окончательно выбрать основной стиль интерьера, чтобы возможные дизайнерские решения в начале можно было включить в проект.
Особенности планировки 4-х комнатной квартиры
Большая квартира – большие возможности. Четырехкомнатная квартира станет прекрасным выбором для большой семьи, ведь в такой квартире точно всем найдется место.

Когда речь заходит о планировке большой квартиры, то следует учесть два основных пункта:
- Максимальная изоляция жилых комнат друг от друга.
- Пространство квартиры максимально комфортно и свободно.
Два вроде бы противоречивых правила следуют неотлучно друг от друга.

В разных ситуациях холл может быть использован как вторая гостиная или вообще, как комната
Особое внимание следует уделить ванной комнате и туалету. В некоторых больших квартирах предусмотрено две туалетные комнаты. Одна из них совмещается с ванной
Это вызывает определенные удобства, например, утром, когда вся семья собирается по своим местам
Одна из них совмещается с ванной. Это вызывает определенные удобства, например, утром, когда вся семья собирается по своим местам.
Сама планировка квартиры должна полностью устраивать, так как речь идет о жилище на долгие годы, а может и на всю жизнь.

Удачная планировка детской в 3 комнатной квартире
Для родителей очень важно создать особенно комфортные условия проживания для своих детей. Потому обустройству детской уделяется много внимания
Ведь, по факту, в этой комнате необходимо объединить в себе несколько функциональных помещений в одном.
Так, здесь важно создать комфортную зону для сна и отдыха (т.е. спальню), удобные места для развивающих занятий и подготовки уроков (т.е
кабинет), а также, что немаловажно — спортивный уголок и игровую зону (спортзал и игровую).
Вот почему родители часто жертвуют для этой цели самой большой комнатой, особенно если ребенок в семье не один. Это позволяет с большой долей удобства создать для детей все необходимые зоны для полноценного развития.
Популярные стили оформления
Небольшие студии, переоборудованные из малогабаритных квартир, используют буквально каждый сантиметр. При этом должна выполняться главная задача — обеспечение свободного пространства. Для таких вариантов подойдут современные стили — хай-тек или минимализм.
Жилые помещения, имеющие большую площадь, могут использовать и другие стили. Классика с массивной мебелью и шикарным оформлением во все времена остаётся востребованной. Модерн привлекает своей оригинальностью. Он часто комбинируется с популярным сегодня экостилем.
Молодёжь зачастую предпочитает этнический скандинавский интерьер с элементами Лофта. Неординарные личности, любящие пофилософствовать, выбирают восточные эскизы. Прованс перекликается с деревенскими мотивами.
Особенности
Перед планированием ремонта и предварительного консультирования с дизайнером важно обговорить основные моменты и принять решения по ряду вопросов самостоятельно. Хозяева должны знать, какой дизайн они хотят видеть в своей квартире
Возможно, понадобится перепланировка.
На этот фактор влияет несколько особенностей:
- Общая площадь квартиры и месторасположение комнат.
- Количество проживающих и необходимость обустройства личного уголка для каждого.
- Стиль жизни членов семьи.
- Выбранный стиль.




Создавать дизайн двухкомнатной квартиры в «новостройке» гораздо проще, чем во вторичном жилье. Совсем немногие оказываются недовольны планировкой квартир в новых домах, и хотят изменить ее. К сожалению, то же самое об обладателях квартир в старых домах сказать нельзя, ведь квартиры здесь зачастую совсем крошечные. Не радуют и архитектурные особенности: узкий и темный коридор, совмещенные ванная и туалет, маленькая кухня. Одни дизайнеры прибегают к использованию методов зрительного увеличения помещений, другие настаивают на перепланировке. Имейте в виду, что в некоторых домах получить разрешение на перепланировку кухни невозможно. Это связано, в первую очередь, с расположением коммуникаций, в частности, газопроводов.




После того, как работы по перепланировке завершены, можно начинать планировать непосредственно ремонт. Практически все дизайнеры рекомендуют оформлять пространство в едином стиле, выбранном заранее. При комбинировании в двухкомнатной квартире нескольких стилей потребуется помощь настоящего профессионала своего дела, однако мало кто станет планировать интерьер смешанной стилистики на площади в 40 кв. м.
Дизайн гостиной в двухкомнатной квартире
Гостиная в двухкомнатной квартире может быть как местом для приёма гостей, так и спальней, кухней, столовой, детской, игровой или библиотекой! Самые красивые и практичные идеи дизайна гостиной мы собрали для вас ниже.
Дизайн гостиной комнаты в стиле функционализм
Дизайн гостиной в стиле функционализм – идеальное решение для городской жизни. В таком варианте оформления вы можете использовать интересные цвета и оттенки, фактуры, рельефы, эксклюзивные идеи дизайна и текстиль, чтобы сделать комнату более оригинальной.
Интерьер гостиной в скандинавском стиле, с кроватью
Гостиная с кроватью часто оформляется в скандинавском стиле, так как именно в нём данное планировочное решение по расстановке мебели является традиционным, потому вполне органичным.
Гостиная с присоединенной лоджией и панорамным остеклением
Ещё один вариант гостиной в скандинавском стиле порадовал нас модным расположением кресел и наличием панорамного остекления.
Гостиная совмещенная со спальней
Отличный вариант гостиной комнаты со спальней и большим количеством мест хранения вы видите на фотографии выше
Обратите внимание на интересное функциональное решение с кроватью, которая скрывается в нише (на фото она разложена), освобождая довольно большое пространство. Также стоит отметить использование сразу нескольких приёмов зонирования для визуального разграничения зоны спальни и гостиной: стеллаж в качестве перегородки, и материалы отделки стен; в гостиной — гипсовые 3d панели, в зоне спальни — обои
Гостиная в скандинавском стиле
Этот вариант дизайна гостиной в скандинавском стиле с кроватью реализован в старом доме. Здесь есть выход на балкон и одно небольшое окно, а интерьер всё равно смотрится модно и стильно!
Акцентная подсветка в дизайне гостиной
Такая потрясающая подсветка для акцентной стены в гостиной преобразит любую, даже самую маленькую комнату
Но все же используйте данный дизайнерский приём с осторожностью, например, лишь на одной стене
Кирпичная стена в интерьере гостиной
Ещё один вариант фокусного дизайна – акцентная стена «под кирпич», которая может стать вашим лучшим решением при оформлении гостиной. Такая идея подойдет под стили: скандинавский, лаунж, лофт и минимализм.
Детская в гостиной с диваном
В гостиной можно обустроить и детскую. У входа в комнату будет шкаф-купе, у окна – рабочее место, а в центре – раскладной диван с телевизором. Используйте больше текстиля для колористических акцентов.
Интерьер гостиной в американском стиле
При оформлении гостиной в американском стиле часто организуют столовую группу. При этом ваша кухня освобождается от стола и стульев, что делает её более просторной и удобной.
Гостиная с маленькой кухней
Отличный вариант гостиной в современном стиле, на этот раз – с кухней. Здесь прихожая, кухня и гостиная являются одной комнатой, что позволяет сэкономить место ещё для одной или даже двух спален в двухкомнатной квартире!
Удачная планировка детской в 3 комнатной квартире
Для родителей очень важно создать особенно комфортные условия проживания для своих детей. Потому обустройству детской уделяется много внимания
Ведь, по факту, в этой комнате необходимо объединить в себе несколько функциональных помещений в одном.
Так, здесь важно создать комфортную зону для сна и отдыха (т.е. спальню), удобные места для развивающих занятий и подготовки уроков (т.е
кабинет), а также, что немаловажно — спортивный уголок и игровую зону (спортзал и игровую).
Вот почему родители часто жертвуют для этой цели самой большой комнатой, особенно если ребенок в семье не один. Это позволяет с большой долей удобства создать для детей все необходимые зоны для полноценного развития.
Дизайн гостиной в трехкомнатной квартире
Идеи дизайна и варианты расстановки мебели в гостиной.
Электрокамин / биокамин в гостиной комнате

Биокамин или электрокамин в дизайне современной гостиной может совершенно изменить атмосферу всего интерьера, добавить ему утонченного шика и домашнего уюта. Выбирайте дизайн камина под стиль интерьера, например, отделку мрамором – для арт-деко и классики, деревом – для английского стиля и готики.
Кабинет в гостиной, интегрированный в современный комплект мебели для TV

Кабинет может быть легко интегрирован в дизайн гостиной. Например, с помощью модульного комплекта мебели для телевизора вдоль длинной стены.
Зеркальная отделка и глянцевые элементы в дизайне гостиной

Любые поверхности, которые хорошо отражают свет, хороши для оформления квартиры. Например, глянцевые декоративные панели для стен и фасады мебели, зеркальная отделка стен с фацетом и без, а также зеркальная отделка фасадов мебели – комода, консольного столика, диванной тумбочки.
Полочка для постеров, картин и декора для маленькой комнаты

Маленькие полочки могут показаться вам слишком простым решением, чтобы быть по-настоящему эффективным. Но это вовсе не так! В дизайне небольшой комнаты они помогут разместить коллекцию произведений искусства, сувениров, поставить постеры или мягкие игрушки в детской так, чтобы все выглядело красиво и геометрично.
Сдержанная цветовая гамма с одним цветовым акцентом

Сдержанные палитры для гостиной сейчас более популярны, чем яркие, насыщенные или глубокие
Все большее внимание уделяется фактурам, орнаментам, рельефам, текстилю и, в целом, качеству материалов отделки
Модная отделка стен декоративными панелями под дерево

Декоративные панели под дерево отлично балансируют образ слишком серьезной и строгой современной гостиной комнаты.
Детская зона в гостиной

Если в гостиной вам нужно разместить еще и детскую комнату, вы можете использовать присоединенную лоджию как подиум для кровати или раскладного дивана, а также декоративные перегородки, как на 3D-визуализации выше.
Полезные советы
Владельцы однокомнатной квартиры всегда стремятся получить пространство для комфортной жизни в условиях ограниченного пространства. Для оптимального задействования каждого сантиметра есть масса рекомендаций дизайнеров и архитекторов.
Вот некоторые советы, которые помогут создать функциональный и уютный интерьер:
- Выделение зон оформляется дополнительным освещением. Для этой цели выгодно применять экономичные светодиодные точечные и линейные светильники.
- Отделить кухню от остального пространства можно барной стойкой, над которой подвешен ряд диодных фонарей. В общем полумраке они создадут «стену света».
- Кладовую лучше использовать в качестве гардеробной, а если позволяют размеры, то может получиться даже небольшая спальня.
- После объединения утепленной лоджии с комнатой подоконник удобно использовать в качестве основания для обеденного стола.
- Для экономии места выгоден плазменный телевизор, который можно расположить на любой стене.
Практичность
Комфорт
комфортом, но дело практичности также очень важно, поскольку именно от этого
параметра зависит, насколько удобно будет перемещаться внутри квартиры, и как
быстро жильцы будут получать доступ к нужному пространству
Что стоит учесть,
создавая практичность? Для этого важно обратить внимание на:
- двери, в
какую сторону они открываются и какие препятствия создают в пространстве; - количество и
удобство расположения розеток; - перепланирование
площади с возможностью увеличения/уменьшения необходимых зон; - количество
осветительного оборудования; - расстановку габаритной
мебели.
Варианты перепланировки и зонирования в трешке
Перепланировка трехкомнатной квартиры может оказаться довольно сложным делом; некоторые типовые планировки практически не подлежат изменениям из-за расположения несущих стен или длинных коридоров, а также колонн или просто маленькой площади. Тем не менее мы собрали для вас актуальные и удачные планировки с практичными идеями, которые могут вам понравиться.
Планировка трехкомнатной квартиры с совмещенными кухней и гостиной

В этом варианте перепланировки, кухню (8 кв. метров), гостиную (20 кв. метров) и прихожую (7,6 кв. метра) объединили в одну комнату, которая получилась очень просторной и с двумя окнами. В детской и спальне лоджии присоединены, там образовались кабинет и игровая комната. Ванная комната расширена за счет одной из спален, теперь здесь есть и ванная чаша, и душевая кабина. Кухонный гарнитур поставлен таким образом, чтобы раковина находилась напротив окна, что очень удобно, а зона для ТВ встроена в нишу.
Планировка трехкомнатной квартиры с двумя ванными и открытой кухней-гостиной

Эта практичная планировка трехкомнатной квартиры площадью 110 квадратных метров имеет две спальни, в каждой из которых есть ванная комната и гардеробная. Кухня не имеет окна, но спроектирована в американском стиле – с островом и столовой на четыре персоны. В гостиной двери на балкон решены в формате дверей-слайдеров со стеклами от пола до потолка.
Планировка трехкомнатной квартиры с постирочной

Еще один вариант перепланировки трехкомнатной квартиры реализован в интересном формате. На месте, где раньше была кухня, теперь расположились гостевой дополнительный туалет и прачечная, на месте прихожей – кухонный гарнитур. Кухня и столовая объединены. На плане в правой части квартиры расположены две спальни, каждая с ванной комнатой и встроенными шкафами-купе. А при гостиной большая лоджия оформлена в стиле патио с диванчиком и летней столовой.
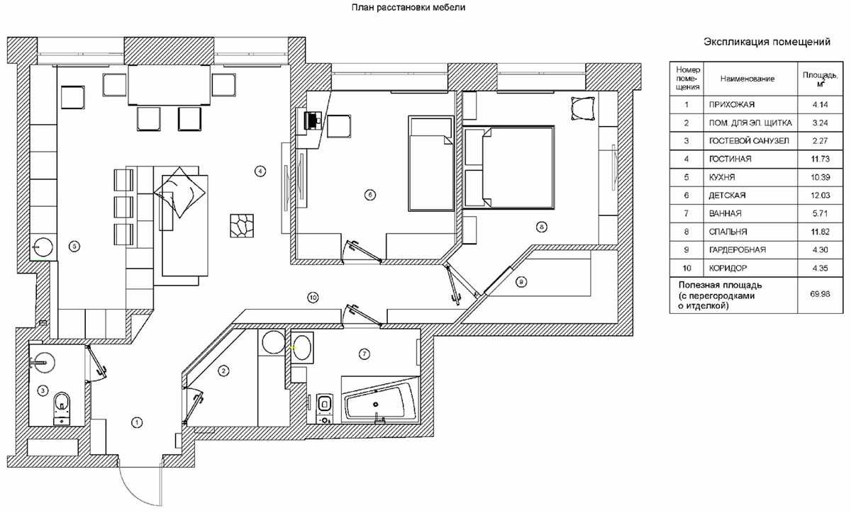
План расстановки мебели в трехкомнатной квартире площадью 70 квадратных метров

Эта планировка трехкомнатной квартиры вполне типична для новостроек Москвы. Гостиная и кухня были объединены, на месте прихожей расположилось помещение для электрощитка, по совместительству – гардеробная. Также есть гардеробная при главной спальне и гостевой туалет.
Трешка с открытой планировкой

Еще одна удачная планировка трехкомнатной квартиры имеет по гардеробной в каждой из спален и две ванные комнаты. Столь расширенный формат стал возможен благодаря размещению кухни в зоне прихожей и устранению коридора как такового. Теперь здесь есть лишь проходная зона между кухней и гостиной, с обеих сторон острова.
Планировка трехкомнатной квартиры с длинным коридором

Проблема квартир с длинными коридорами в том, что в них зачастую очень сложно сделать перепланировку, так как вариантов расположения комнат не так уж и много. Но в данном варианте, обе спальни получили встроенные гардеробы, хозяйка – отдельную прачечную и кухню-гостиную открытой планировки, а в прихожей теперь есть встроенный шкаф для одежды.
Планировка трешки в хрущевке площадью 54 квадратных метра

В данном случае трехкомнатная квартира в хрущевке стала двухкомнатной. Спальню в 6 квадратных метров, которая в некоторых случаях в пятиэтажках также является кладовой, сделали частью главной спальни, которая теперь располагает площадью в 15,6 квадратных метров.
Дизайн кухни в двухкомнатной квартире
Кухня в двухкомнатной квартире может быть отдельной или открытой, маленькой или средней по площади, с зоной гостиной, располагаться как на своём исходном месте, так и совсем в другой комнате – коридоре, гостиной, на лоджии или даже на месте спальни!
Кухня с открытой планировкой: плюсы и минусы

Открытая планировка кухни позволит вам реализовать мечту почти каждого современного человека – общественную зону с островом, большим диваном, двумя окнами и красивым дизайном интерьера
Если для вас это важно, смело используйте открытую планировку и в своём проекте. Минус в том, что гостиная перестаёт быть приватной комнатой
И если вы хотите использовать её и для спального места, такой вариант вам может не понравиться, особенно если в вашей семье много человек.
Кухня с островом

Остров может быть представлен как простой столовой группой, так и островом с барной стойкой и рабочей столешницей, а может даже содержать множество функциональных элементов – плиту, раковину, встроенные стиральную и посудомоечную машину и многое другое. Кстати, в последнем варианте слив нужно будет прокладывать в полу ещё при ремонте.
Дизайн узкой и длинной кухни

Специально для вас мы нашли вариант потрясающего дизайна маленькой, узкой и длинной кухни, какие так часто можно встретить в двухкомнатной квартире. Как видите, и закрытая и приватная маленькая комната тоже может быть красивой.
Белая кухня в стиле минимализм

Пожалуй, самым модным вариантом оформления современной кухни является белый гарнитур в стиле минимализм, с островом. Если вы остановитесь на этой идее, вы точно получите ультра-современный интерьер.
Открытая планировка комнаты 25 кв. метров

А вот так можно оформить в скандинавском стиле комнату площадью около 25 квадратных метров в двухкомнатной квартире, где будет ещё одна отдельная спальня или детская комната.


















































