Виды
Существует несколько вариаций типовых сооружений, которые подходят для застройки нестандартной территории. Подобные дома уже спроектированы с учетом особенностей узкой полосы земли и позволяют эргономично использовать площадь участка.
Американский тип
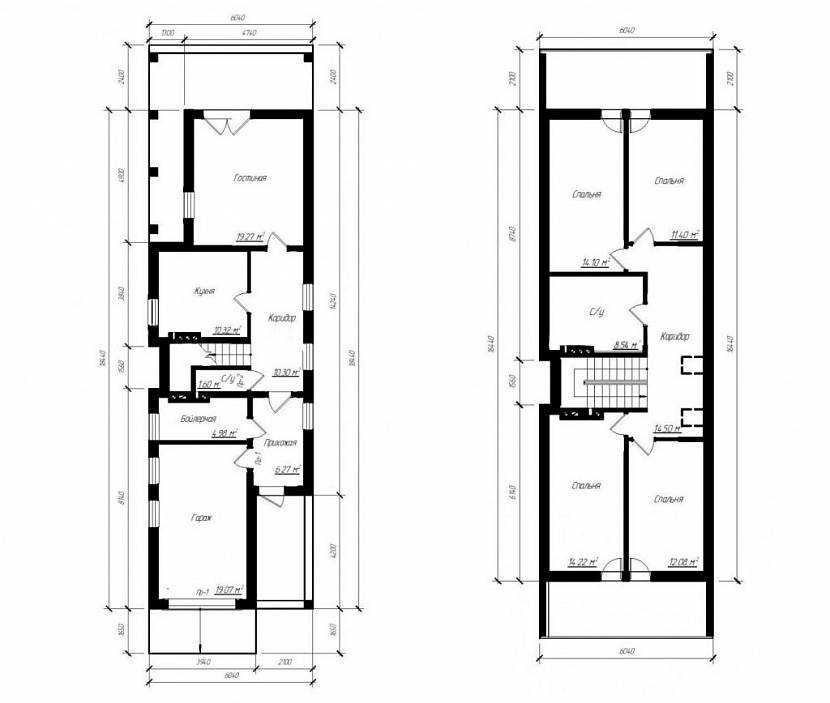
Довольно популярный вариант для застройки частного сектора в США. Дом имеет прямоугольную форму, типовые параметры – 6х12 метров. При этом здание – двухэтажное, поэтому внутри можно разместить все бытовые помещения и инженерные коммуникации для комфортного проживания.
Планировка обычно выглядит следующим образом:
- первый этаж вмещает достаточно большую для такого коттеджа гостиную, совмещенную кухню-столовую, кабинет и санузел;
- на втором этаже находятся две просторные спальни – хозяйская и гостевая, а также две детские. Помимо этого, присутствует ванная и еще одно небольшое помещение с туалетом и душем.
Такой дом рассчитан на семью с 2-3 детьми, при этом остается и пространство для приема гостей. Двухэтажное здание позволяет сохранить приватность за счет личных комнат, но при этом создать общее пространство, где жильцы смогут собираться и проводить время вместе.
С мансардой
Это более экономичный вариант, чем двухэтажный. На постройку такого здания уходит меньше материала, но при этом наличие мансарды позволяет обеспечить дополнительное жилое пространство. Дом, как правило, имеет параметры 16,5х5 метров, при этом потолок на первом этаже достаточно высокий, что создает ощущение простора. К торцу здания пристраивается большое крыльцо.
Типовая планировка подразумевает следующее расположение комнат:
- на первом этаже есть удобная гостиная, совмещенная с небольшой кухней, гардеробная и туалет;
- на втором этаже находится зона для отдыха, которая включает две спальни, у каждой есть отдельный санузел.
Подобный вариант подойдет для молодой пары или семьи с ребенком. Одну из спален можно превратить в детскую. Наличие отдельных санузлов позволит всем жильцам чувствовать себя комфортно.
С гаражом
Многие люди имеют автомобиль, поэтому для него тоже нужно предусмотреть место на участке. Гараж можно обустроить прямо под крышей дома, при этом внутри останется достаточно жилого пространства. Такое сооружение будет чуть длиннее – 19х6,5 метра, что и позволяет вместить все необходимое.
Планировка подобных домов включает:
- гараж на первом этаже, при этом доступ к нему может быть как через въездные ворота, так и через отдельную дверь, изнутри здания;
- помимо этого, снизу располагается кухня, совмещенная в одном пространстве с гостиной, и туалет;
- на втором этаже размещены три просторных жилых комнаты, в которых можно оборудовать спальни и детские, а также два санузла.
Внутри есть все необходимое для жизни, а планировка с гаражом под крышей позволяет не загромождать участок дополнительными сооружениями и немного сэкономить при строительстве.
Дома американского типа на узком участке
Некоторые районы в Америке имеют планировку, при которой дома располагаются практически вплотную друг к другу. Участки хоть и узкие, но дома строятся комфортабельными. Это большие строения с двумя этажами. Обычно габариты американского дома 6х12 м. Пример такого проекта дома для узких участков на фото:

Первый этаж полноценный, включает в себя все необходимые комнаты. Это:
- кухня;
- санузел;
- холл;
- 3 комнаты, которые могут использоваться для разных целей. Все зависит от владельца. Это и кабинет, и гостиная, и спальня, и т. д.
На втором этаже место для небольшого холла и двух больших комнат. Многие на втором этаже создают душевую, кухню и балкон. Правда, это не стандарт, проект может быть сделан по-разному. Но на его примере можно убедиться, что места внутри полно.
https://youtube.com/watch?v=o0C_0zjZjYU
Общие сведения
Но все же в таких условиях можно построить дом, который не будет напоминать барак. Есть большой выбор среди известных дизайнерских решений, тем более такие проекты домов недорогие и весьма практичные. Большинство проектов даже адаптированы под те или иные регионы страны.
Особенности
При планировке такого дома все делают по следующим принципам:
- Высоту дома увеличивают – расположенную на узком участке постройку делают двухэтажной и с мансардой, которую утепляют, тем самым делая ее жилой.
- Расширяют пространство – для этого используют дополнение в виде цокольного этажа. Чтобы в нем было комфортно жить, делают несколько окон.
- Размещение дома – постройка будет расположена таким образом, что торцевые стены ориентируются на запад и восток для естественного освещения.
- Конструкция крыши – благодаря необычной конструкции крыши шале рядом с домом можно сделать еще и террасу.
При возведении дома на узком участке определенным требованиям должен соответствовать и ландшафтный дизайн. Если сделать грамотный проект, вы сможете использовать купленную территорию по максимуму, и при этом сохранить приватность даже при плотном расположении близлежащих домов.
Коттеджи и дома, которые расположены на узких территориях, имеют ряд особенностей:
- План вытянутый.
- Фронтоны обращены в сторону улицы.
- Глухие стены (одна или две).
- Окна находятся на более освещенных сторонах, или же дома обладают панорамной конструкцией.
- Есть эркеры, окна на мансарде и окна для второго света.
- Наличие цокольного этажа, где будет тренировочный зал, кладовая или котельная.
- Второй этаж нависает над террасой.
- Для компактности устанавливают одномаршевую лестницу.
Эти особенности проектов для домов на узких участках с мансардой позволяют не только визуально увеличивать пространство внутри, но и делать жилье удобнее.
Что входит в разработку проекта одноэтажного дома
Составление проекта – один из основных этапов строительства. Если не учесть все нюансы площади участка, типа почвы и требований к готовой конструкции, может возникнуть очень много трудностей в процессе возведения дома.
ФОТО: z500proekty.ru/projekt/z200.html Удачное расположение постройки с красивыми дорожками и освещением
Проектирование помещения должно учитывать несколько моментов:
- Габариты самого участка. Дом должен быть расположен так, чтобы оставалась свободная площадь по периметру. Если расположите конструкцию близко к краю, то забор закроет часть окон. А также многие владельцы частных территорий хотят оставить место под огород или сад. Выбирая форму и габариты дома, стоит учитывать все нюансы будущей жизни в нем.
- Особенности почвы. От данного фактора зависит возможность использования цокольного этажа и расположение самого дома. А также количество материалов на фундамент и возможность в будущем достроить второй этаж.
Вариант расположения на участке
Требование к размерам комнат
Для некоторых людей принципиально важно наличие нескольких больших и маленьких помещений. Проект должен быть составлен таким образом, чтобы было рационально учтено все пространство, отведенное под дом.
Близость или монтаж автономных коммуникаций
Если рядом проходит магистраль с водопроводом, канализацией, электроэнергией или газом, возводить постройку надо в близости к подключению, чтобы не тратить лишние средства на прокладку труб и протягивание проводов. Если планируется монтаж частного водопровода или септика, это также учитывается на стадии составления проекта.
ФОТО: z500proekty.ru/projekt/z83.htmlПодходящая конструкция для небольших площадей
Досконально проработав план одноэтажного дома 8 на 8 м или с использованием других габаритов, составив подробную смету, на само строительство и подключение постройки к коммуникациям уйдет намного меньше времени, сил и денежных вложений.
Планировка проектов домов для узких участков
Схема здания на длинный участок обладает индивидуальными особенностями:
- на одной из стен отсутствуют окна, что позволяет расположить здание в предельной близости к границе земельного участка;
- хозяйственно-технические помещения часто имеют продольное расположение, благодаря чему гостиная и спальня располагаются в торце здания с достаточным освещением.
Каталоги строительных компаний содержат индивидуальные и типовые архитектурные проекты домов для узких участков. В домах отсутствуют окна по длинным сторонам постройки, но в жилых комнатах присутствует хорошее освещение.
У проектов узких домов для узких участков вход располагается с фронтальной или с боковой стороны, поэтому дом размещают при ограничениях в ширине и глубине участка.
Чтобы наиболее эффективно использовать удлиненную территорию, оптимально будет разместить дом впритык к границе участка теневой стороны, предельно освободив территорию перед домом. Если возле участка проходит дорога с оживленным движением, то, постройку располагают в глубине территории, огородив свой дом от проезжей части с помощью зелёных насаждений.
Гараж тогда стараются расположить на фронтальной границе территории, чтобы проезд к нему не занимал много места на участке.
Архитектурный проект узкого дома – гараж вынесен впередИсточник www.remontbp.com
Планировка узкого дома, первый этаж и мансардаИсточник rekoweb.ru
Задний дворИсточник www.domamo.ru
Предварительно продумывают планировку дома на вытянутом участке, расположение дополнительных построек, а также проведение инженерных коммуникаций (оросительные системы, скважины, септики, освещение участка), для обеспечения их удобной эксплуатации. Доработка при строительстве повысит денежные затраты.
Интересные и полезные факты
Государственные структуры, отвечающие за нормы и условия в домах для жизни, установили некоторые параметры каждого из помещений, чтобы каждому жильцу было комфортно. Таковыми нормами являются:

Интерьер и декор узкой гостиной студии со столовой и кухней
- Гостиная, если в доме проживает двое, трое и более человек, должна составлять не менее 16 кв. м;
-
Другие жилые помещения, в том числе спальня и кухня, не могут быть менее 8 кв. м в общей сумме;
- Коридоры не должны быть по ширине меньше, чем 85 см. Если в квартире есть инвалиды, то данный параметр меняется на метр и пятнадцать сантиметров минимум;
-
Прихожая по стандартам должна быть не менее одного метра и сорока сантиметров в ширину;
- Туалет не меньше 80 см в ширину;
- По стандартам, длина комнат может быть не более чем в два раза больше ширины. Как раз этот момент очень важен для узкого участка на этапе построения проекта коттеджа.
Учитывая вышеуказанные нюансы, следует составлять проект дома для узкого участка.

Схемы и планировка двух этажей длинного и узкого здания
Плюсы и минусы проживания
Вторая часть вопросов не касается вашего кошелька, но их значение ничуть не меньше размера финансовых вложений. Сэкономив на стройке, вы можете столкнуться с серьезными неудобствами проживания. Поэтому рассмотрим более подробно, какие преимущества и недостатки есть у сравниваемых зданий.
Планировка помещений, не разделенных по высоте на два уровня, удобнее для жильцов. При грамотно составленном плане одноэтажки отпадает необходимость в коридорах, забирающих немалую часть площади.

В двухуровневом доме главная планировочная проблема – лестница. Если сделать ее удобной (широкой и некрутой), то она займет не менее 15 м2. Желание сэкономить на размерах делает ее неудобной и травмоопасной для пожилых людей и детей. Частично потери полезной площади можно скомпенсировать, разместив под лестницей гардеробное помещение или кладовую.
Второй этаж – желанный уголок тишины и отдыха для семьи. Поэтому здесь, как правило, размещают спальни. Шум хозяйственных и жилых комнат первого этажа сюда практически не доходит.

Если здание будет строиться в живописной местности, то нужно принять во внимание фактор обзорности. Двухэтажный коттедж в этом плане вне конкуренции
Сделав наверху открытую террасу или лоджию, вы сможете каждый день наслаждаться окрестными пейзажами. На первом этаже можно любоваться только красивым участком и забором.
С архитектурной точки зрения высокий фасад выразительнее и перспективнее низкого. На нем есть достаточно места для внешнего декора (колонн, пилястр, карнизов, поясков). Кроме этого, сторонники и противники высоких построек сходятся в одном: внешний вид таких зданий солиднее и богаче, чем у низких.
Если говорить о стоимости обслуживания, то у одноэтажного дома больше плюсов. Любую работу, связанную с восстановлением или заменой отделки, водосточной системы здесь можно сделать с обычной лестницы. Для ремонтных работ на высоком здании нужны строительные леса, самостоятельная сборка или аренда которых «выльется в копеечку».
Решая, какой дом построить, не забудьте соотнести его площадь с размерами участка:
- на 5-6 сотках оптимально размещается жилая постройка площадью 120 м2 (одно- или двухэтажная) для семьи из 4-х человек;
- участки в 10-12 соток лучше всего подходят для коттеджей до 200 м2;
- дом площадью 350 — 400 м2 требует не менее 15 соток свободной территории.
С точки зрения энергоэффективности двухэтажку можно было бы признать лучшим вариантом. Тепло из помещений первого уровня здесь не уходит на холодный чердак, а греет второй этаж. Однако, в двухэтажном доме больше площадь наружных стен и, соответственно, теплопотери через них больше чем в одноэтажном.
Советы по расположению дома
Если вы хотите построить просторный дом на небольшом участке, важно рационально использовать имеющиеся площади. Если жильцов много, и необходимо много комнат и свободного места, придется строить коттедж в два или три этажа
Такой вариант оптимален для маленьких участков, хотя и обойдется существенно дороже, чем строительство одноэтажного здания.
Дополнительные помещения в коттедже можно расположить не только на чердаке, но и под землей. То есть предусмотреть еще цокольный этаж. Подобное решение идеально если вам нужны еще кладовые, погреб, бильярдная, тренажерный зал, сауна… Да что там говорить, в цоколе можно разместить в том числе и гараж, тем самым сэкономив место под него на территории участка.
Размер дома должен быть пропорционален размеру участка, в противном случае возможно нарушение норм СНиП, что чревато проверками и штрафами. Идеальное соотношение — 1 к 8 или 1 к 10, хотя если вам не нужны дополнительные постройки, рассады, ландшафтный дизайн, можно построить дом и большей площади — главное не нарушать нормы расстояний от границ соседних участков.
Лучше не располагать дом посередине имеющейся территории, а сдвинуть чуть в бок или к дальним границам. Это позволит расположить все необходимые вспомогательные постройки, разбить сад, организовать огород или беседку для отдыха.
Нестандартным решением является строительство дома на сваях, где на первом уровне расположится стоянка для авто или летняя кухня. Так же уместно размещение открытой веранды или навеса возле здания – это создаст просторное и, в то же время, функциональное помещение.
Как сделать дом экономичным?
Квадратная форма дома наиболее энергоэффективная, так как на фасадах отсутствуют, так называемые «мостики холода», которые образуются при строительстве сложных элементов: арок, эркеров, выступов и др. Чем проще конструкция, тем эффективнее она удерживает тепло, а вдобавок еще и обеспечивает финансовую экономичность.
Особых затрат требует проведение коммуникаций и трубопроводов горячего и холодного водоснабжения. В одноэтажных домах лучше предусматривать несколько санузлов, располагаемых в разных частях здания. Чтобы не протягивать трубы по всей длине, делают четко обозначенные вводы и выводы воды. По этой же причине, кухню и санузлы обычно размещают рядом. При планировании двух или более этажных домов, ванные комнаты располагают друг над другом, тем самым сокращая длину водопроводных и канализационных труб.
Использование пластиковых окон позволить застеклить значительные части стен и при этом сохранить драгоценное тепло в холодное время года.
Вообще, если стоит задача экономии, вовсе не обязательно строить дом из кирпича или железобетонных монолитных блоков
Обратите внимание на дерево. Например, оцилиндрованные бревно или брус
Отапливать небольшие дома из дерева совершенно не затратно. Они хорошо держат тепло.
Кроме этого, дерево обладает минимальной массой в сравнении с другими стройматериалами, что даже при строительстве трехэтажного дома, поможет снизить нагрузку на грунт и отказаться от дорогостоящего монолитного фундамента. Для таких случаев подойдет ленточный фундамент или свайное основание, строительство которого в разы дешевле.
На плоской крыше нередко обустраивают зимние сады, бассейны, площадки для отдыха, спортивные территории. Кроме оригинального дизайна, это позволяет экономить пространство внутри самого дома.
Узкие дома с мансардой и гаражом
Существует множество архитектурных решений, благодаря которым будущий коттедж не превратится в унылый длинный барак. Излюбленным вариантом является использование мансардного этажа. Если сравнивать с двухэтажным домом, проекты с мансардой оптимальны по соотношению цена/качество. Они более просты конструктивно и менее затратные, как в строительстве, так и в отделочных работах. Вытянутая форма проекта с мансардой не накладывает ограничения на комфорт; типичная планировка включает следующие особенности:
Зона отдыха. Спальни располагаются на мансардном этаже. Вы сможете принимать гостей на первом этаже, не нарушая личное пространство домочадцев. Практичным решением будет расположение на втором этаже ванной и гардеробной.
- Открытая планировка. Нередко гостиная, столовая и кухня объединяются в единое пространство, красивое и функциональное.
- Технические помещения. Кладовую и санузел располагают рядом с кухней. Это удобно и рационально с точки зрения организации инженерных сетей.
- Терраса или веранда. Из гостиной устраивают выход на террасу. Это расширяет зону отдыха и позволяет устраивать чаепития и обеды на свежем воздухе.
Дом с мансардой для узкого участка обычно задумывается с гаражом. Если гараж будет отдельной постройкой (или площадкой с навесом), его размещают рядом с границей участка, чтобы не терять метраж под подъездной дорожкой. Поскольку вытянутая конструкция неизбежно повернута торцевой (узкой) частью к улице, пристроенный гараж будет располагаться на главном фасаде.
Проектирование будущей постройки
Чтобы возвести действительно комфортный и удобный дом на маленьком или узком участке земли, при этом, не занимая пространство ненужными или мало используемыми комнатами, перегородками, помещениями и другими строительными решениями, необходимо подготовить тщательно продуманный проект, включающий хорошо организованное внутреннее и внешнее зонирование.
При отсутствии опыта в этом вопросе, лучше обратиться за помощью к квалифицированным специалистам, которые предложат либо уже готовое стандартное решение или спроектируют индивидуальный проект, учитывая ваши пожелания.
Иногда, все идеи и пожелания по строительству могут быть ограничены составом грунта или рельефом местности
Важно обратить внимание на эти вопросы и, при проектировании, пользоваться нормативными документами, чтобы в дальнейшем избежать разрушения фундамента или стен здания
Особенности двухэтажных домов с мансардой
Планировка коттеджа с мансардой считается самым удачным решением. Это выгодное пространство, которое позволяет включить в план дополнительные комнаты. В основном мансарду используют как спальное помещение из-за сложности размещения в ней мебели. Также в мансардном помещении располагают бильярдную, спортивный зал, гостевую спальню. Ниже на фото представлен оригинальный проект дома с мансардой.
Коттедж с мансардой: дополнительное помещение без увеличения этажности
Учитывая общий вес здания, первый этаж при наличии в доме мансарды делают массивнее второго. В проектах и чертежах домов и коттеджей, которые также находятся в бесплатном доступе в интернете, учитывают весовую нагрузку на фундамент постройки.
Мансарда может стать очень комфортным помещением, если предусмотреть нюансы возведения крыши. Двускатная крыша делается проще всего и с наименьшими затратами. Но это будет самым неудобным вариантом для размещения мебели в мансарде.
Мансарда в доме обеспечит следующие преимущества:
- получается дополнительное помещение без особых финансовых затрат;
- изломанные крыши с разными наклонами делают облик дома интересным и уникальным;
- помещение под крышей можно сделать очень оригинальным и функциональным.
Планировка мансардного этажа
Сад на узком участке
В заключении хочется написать пару слов о том, как создавать сад, на продолговатом участке, ширина которого не превышает 15-20 метров. Бороться с теснотой в саду можно только, т.н. оптическими методами. Сделать территорию визуально шире помогает:
- разделение участка на уровни (подпорные стены, террасы);
- условное разделение участка на зоны при помощи пергол, полупрозрачных живых изгородей, арок, шпалер;
- извилистые дорожки, «ломающие» линейность участка и при каждом повороте изменяющие перспективу;
- поперечные и зигзагообразные ряды кустарников и деревьев, а не высаженные в длину;
- расположение ландшафтных линий по диагонали участка или дугой.
План одноэтажного дома: достоинства и недостатки конструкций
План одноэтажного дома можно продумать самостоятельно, если обладаете определенными техническими знаниями, или обратиться к профессионалам и заказать готовый проект. Любой из выбранных способов должен включать не только схематичный рисунок, но и точные размеры несущих стен, внутренних перекрытий, типа крыши и материалов для строительства.
ФОТО: z500proekty.ru/projekt/zx105.htmlСтиль Хай-тек: красота и аккуратность
На основе плана одноэтажного дома составляется смета. Если обращаетесь в строительную организацию и заказываете возведение коттеджа под ключ, то дополнительно составляется договор со сроками работ и итоговой стоимостью.
Вот несколько примеров планов одноэтажных домов с фото и описанием:
| Фото | Краткое описание | Стоимость постройки с работой мастеров, руб. |
![]() |
Проект «Басня» с общей площадью в 124,7 м², из которых жилая составляет 116,9 м². Железобетонный фундамент, а стены из бетонных блоков с утеплителем из пенополистирола. Перекрытия выполнены из деревянных балок с уплотнением из минваты, а крыша – двускатная из металлочерепицы | 2,06 млн |
![]() |
Проект одноэтажного дома с мансардой и гаражом. Общая площадь – 164,4 м². Габариты гаража 11 на 16 м, подвал не предусмотрен, так же как и цоколь. Входит в план столовая, ванная, санузел, терраса, лоджия, гараж, коридор, и 4 спальни. Подходит для большой семьи. | от 2 млн в зависимости от выбранного материала |
ФОТО: z500proekty.ru/projekt/z24.html ФОТО: z500proekty.ru/projekt/z24.html
|
Планировка одноэтажного дома площадью 150 кв. м. Дом с гаражом,ванной и 4 спальнями. Рассчитан на участок небольшой площади, при этом подходит для большой семьи. Выбор материалов индивидуален. | от 2,03 млн |
Выбирая подходящий готовый проект и заказывая возведение дома, учитывайте сколько членов семьи будет проживать под одной крышей и оставляйте запас на возможное пополнение.
Достоинства и недостатки одноэтажных домов
Разбираясь в теме строительства, у каждого проекта найдутся свои плюс и минусы. Если не отталкиваться от выбранного материала, то среди одноэтажных домов выделяют несколько общих преимуществ:
Вариант с четырьмя спальнями
- конструкции в один этаж безопасны для проживания детей и пожилых людей;
- правильное распределение комнат позволит комфортно проживать сразу нескольким поколениям семьи под одной крышей;
- нет эффекта «хождения по головам»: никакого шума от перемещения по второму этажу не будет;
- на само строительство и подготовку проекта уходит значительно меньше времени, чем на многоуровневые конструкции;
- за домом легче и проще ухаживать;
- большое разнообразие дизайнерских решений во внешней отделке.
Выделяют и несколько отрицательных моментов, связанных с выбором одноэтажного плана для дома:
ФОТО: z500proekty.ru/projekt/z158.htmlСовременный вариант с небольшим прудиком перед входом
- размер участка напрямую влияет на габариты строения;
- стоимость одного этажа может превысить цену за дом в два уровня: обусловлено большими затратами на заливку фундамента, увеличением площади кровли и большей длиной инженерных систем.
Одноэтажные дома могут быть расширены в процессе эксплуатации, что является несомненным плюсом, склоняющим многих людей к постройке именно таких коттеджей.
Статья по теме:
Выбор проекта для узкого участка
К узким домам, так же как и к остальным видам, применяют два вида проектирования:
Типовая разработка. Подходящий вариант для большинства заказчиков, которым сложно самостоятельно определить параметры будущего жилья, но гораздо приятнее выбирать из нескольких предложенных вариантов. Типовые проекты разрабатываются с учетом местных климатических условий и состава грунтов. При необходимости (и часто бесплатно) специалисты компании скорректируют проект под условия конкретного участка. Проект можно отражать зеркально, изменять план помещений, выбирать другую отделку.
Индивидуальное проектирование дома. Участки со сложным рельефом встречаются достаточно часто. Если территория находится в низине, или часть ее занимает склон, то адаптация готового проекта не всегда возможна. В таком случае метод строительства приходится выбирать индивидуально, а проект создавать с нуля. Индивидуальный подход позволяет получить эксклюзивный дом, максимально отражающий потребности хозяев. Будущий владелец может продумать каждую мелочь, делающую быт по-настоящему комфортным. На этапе проектирования можно позаботиться о выразительной архитектуре и украсить дом экером и арочными окнами; внутри не забыть про встроенные шкафы для одежды и дровяной камин в гостиной.
Заключение
Рост цен на землю и уплотнение загородного строительства превратили в норму приобретение участков удлиненной формы. На жилые постройки, возводимые на таком наделе, кроме формы не накладывается никаких ограничений. Они могут иметь разное количество этажей, скатную или плоскую крышу, быть оформленными в классическом, традиционном или современном стиле.
Для любой постройки большое значение приобретает оформление прилегающей территории. Заказывая проект узкого дома, вы, как правило, сможете воспользоваться и квалифицированными советами ландшафтного дизайнера. Благодаря грамотному озеленению и декорированию из окна в гостиной будет открываться вид на ухоженный газон и пышную клумбу, а не на голый забор.
Схемы планировок при проектировании узких зданий
Типовые проекты довольно легко адаптируются к конкретному участку. Это могут быть проекты узких одноэтажных домов или двухэтажных с мансардой. В доме для узкого участка необходимо правильно выполнить теплоизоляцию по причине меньшей энергоэффективности такого здания, в отличие от обычных домов с квадратными формами.

Проект одноэтажного дома для узких участковИсточник yandex.md
Кухня или гостиная лучше разместятся в торце здания, а для спальни подойдёт второй этаж. Готовые проекты создаются с учётом места нахождения инженерных коммуникаций и возможности подъезда тяжёлой техники.

Проект и планировка двухэтажного узкого дома с нежилым чердакомИсточник centermira.ru
Планировка узкого дома с жилой мансардойИсточник opsar.ru
Если не планируете заводить автомобиль, то есть планировки домов без гаражаИсточник glezer.ru
Обзор планировок домов
Проекты коттеджей 7 на 9 метров отличаются небольшой площадью и тщательно продуманной планировкой. В них имеется все необходимое для комфорта и уюта, включая гараж, террасу или верандное пространство. Нередко план дома может быть дополнен небольшим балконом, просторным крыльцом или эркером. Двухэтажные 7 на 9 строения обычно предназначены для проживания семьи из четырех человек.
Компактные загородные дома в последнее время создаются для проживания на протяжении круглого года. Для возведения можно использовать любые технологии и материалы.
- Из кирпича получаются добротные строения, но под них необходимо закладывать прочный фундамент. В итоге дом выходит довольно дорогим.
- Из пеноблоков и газобетона можно сделать качественное и при этом недорогое жилье. Причем по комфорту оно ничем не уступит строениям из кирпича или дерева.
- Профилированный или клееный брус используется также довольно часто. При этом дерево характеризуется отличной эксплуатацией и высокой стоимостью.
- Каркасный вариант дает возможность сэкономить на фундаменте за счет малого веса. Стоит отметить, что такие дома часто недооценивают, хоть они и весьма технологичны.
Конструкция этажей может отличаться в зависимости от того, 1- или 2-этажный это проект, а также от других особенностей
При этом важно уделять особое внимание планировке второго этажа, так как это влияет на объем полезной площади. По конструктиву верхние этажи подразделяются на несколько типов
- Полный второй этаж совпадает по площади с основным (первым). При этом под крышей делается холодное чердачное пространство. Что касается полезной жилой площади, то она будет максимальной.
- Полумансардный подразумевает, что на втором этаже наружные стены несколько меньше, а у потолка наблюдается существенный уклон. Эта особенность приводит к тому, что сложно располагать мебель и перемещаться.
- Мансардный этаж отличается тем, что стены на втором этаже смещены во внутреннюю часть конструкции. Потолок создан с нормальным уклоном. Такие проекты привлекают своим оригинальным видом. Однако надо учитывать, что полезная площадь на втором этаже будет довольно маленькой.
С террасой
Проекты, в которых имеется терраса, нередко делаются двухэтажными. Первый этаж чаще всего занимает гостиная, объединенная с кухней. Из последней, как правило, и делается выход на террасу. Также на основном этаже можно разместить спальню и котельную, у которой будет отдельный вход.
Второй этаж может быть полноценным или мансардным. И в том, и в другом случае он подойдет под спальные комнаты и гардеробные. Чтобы внутреннее пространство казалось несколько большим, можно сделать второй свет.
С мансардой
Коттеджи 7 на 9 с мансардой зачастую имеют площадь до 100 квадратных метров. Планировка этажей делается максимально рационально. Первый этаж отводится под прихожую, гардероб, крупный санузел, котельную, иногда кладовую. Также на нем располагается гостиная и кухня в совмещенном или раздельном варианте. При желании жилье можно расширить, используя эркер. На втором этаже можно разместить несколько спален, компактный холл (чаще всего перед лестницей). Спальные комнаты можно делать маленькими, чтобы осталась площадь под кабинет.
Другие
С полумансардой площадь коттеджа может составлять 100 квадратных метров и более. На основном этаже можно запланировать прихожую, гостиную с кухней, гардеробную, котельную, столовую или кабинет. При необходимости одну из комнат можно заменить спальней. Второй этаж удобнее всего занять спальными и ванными комнатами. Пространство перед лестницей можно оформить как холл и сделать из него выход на маленький балкон.
Площадь полноценного дома с двумя этажами может составлять от 126 кв. м. Этого достаточно, чтобы на первом этаже организовать просторную гостиную и кухню, удобную прихожую, светлый холл и компактный санузел с душевой кабинкой. Что касается второго этажа, то его полностью хватит на 3-4 спальни и ванную. Можно дополнить строение эркером.
Действующие нормы
Объект ИЖС состоит из жилых комнат и помещений дополнительного назначения, и не предназначен для разделения на самостоятельные объекты недвижимого имущества.
Поэтому индивидуальный жилой дом не может делиться, к примеру, на отдельные квартиры.
Земельный участок под жилищное строительство должен удовлетворять определенным условиям:
- Подключенные коммуникационные сети;
- Возможность беспрепятственного подъезда автотранспорта;
- Имеющаяся развитая инфраструктура территории.
Участок земли также должен отвечать всем параметрам, предъявляемым собственникам будущих объектов недвижимости.
Основным требованием жилищного строительства является нахождение в пределах населенного пункта.
Возведенный частный дом должен обладать прочным фундаментом, проживание в нем должно быть безопасным для жильцов и других лиц.
Требования безопасности устанавливаются в Строительных Нормах и Правилах (СНиПах).
При их несоблюдении не допускается строительство индивидуального жилого дома, а также нежилых зданий.
Объекты ИЖС должны возводиться в строгом соответствии с действующими нормами и правилами в области строительства.
При возведении жилого дома при несоблюдении установленной процедуры, придется обращаться в суд, при этом обосновав безопасность строения в соответствии со строительными нормативами и правилами.
Правовая база
Строительство коттеджных домов выполняется, в соответствии со СП 53.13330.2010. Актуализированная редакция СНиП 30-02-97* Планировка и застройка территорий садоводческих дачных объединений граждан, здания и сооружения.
Разработка, согласование, утверждение, состав проектно-планировочной документации на застройку территорий малоэтажного жилищного строительства основывается на СП 11-111-99. Актуализированная редакция СНиП 11-3-99.
При возведении объектов на земельных участках под ИЖС следует опираться на действующий Земельный кодекс РФ и ГрК РФ.
Они содержат технические требования к строениям, участкам земли, а также к их разрешенному использованию.
Проекты узких домов
Проекты домов для строительства дома на узком и длинном участке, можно рассмотреть варианты строительства одноэтажных строений или состоящие из двух этажей.

Проект дома с гаражом
Под крышей такого дома на узком участке располагается гараж. Строение дома с габаритами 6,5х17 метра,несмотря на небольшую ширину дома, он отлично впишется в площадку со сложным ландшафтом.

На первом этаже располагается гараж, совмещенная с гостиной кухня и санузел, предназначенный для гостей. Второй этаж вмещает в себя два санузла и три жилых комнаты.
Американский дом
Проекты домов по американски ,такие строения дома является довольно большим. Оно включает два этажа, и обладает габаритами 6х12 м. Подобные проекты популярны в штатах, поэтому здания дома по строению внешне похоже на такие, стали у нас именоваться как американский стиль дома. Данные дома обладают всем необходимым функционалом, за счет чего комфортность проживания в них довольно высокая.

На первом этаже располагается гостиная, кабинеты, небольшой санузел и кухня, совмещенная со столовой. Второй этаж включает две спальни и две детских комнаты. Возле спальни расположена ванная. Еще на втором этаже находится совмещенный узел, в котором имеется душ.

































ФОТО: z500proekty.ru/projekt/z24.html
ФОТО: z500proekty.ru/projekt/z24.html



















