Заливка фундамента
Начинаем с фундамента, делаем опалубку из досок от поддонов, вдалеке виднеется баня, постройки прошлого года.
Начинаем армировку фундамента стеклопластиковой арматурой, предусмотрительно не поставив одну сторону опалубки, что бы был доступ. Щебень которые лежит на дне ямы под фундамент это компенсация глубины ямы, копали конечно вручную, так как для каркасного дома фундамент нужен минимальный, шириной 20-30 см, глубина залегания около 30 см.
Этот угол (2) получился высоким, потому как перепад высот участка по диагонали фундамента составил около 40 см, на фото ниже самый низкий угол, поэтому немного уменьшили глубину ямы. К чему я это все веду, перед тем как делать фундамент под каркасник, проверьте перепады высот с помощью оптического или гидроуровння
Связали арматуру стяжками, получилось не очень ровно, но стоит уже третий год, проблем нет. Ширина фундамента вышла 35-40 см.
Начинаем месить бетон с помощью бетономешалки.
Пропорции делали следующие 1:4:6 (цемент:отсев:щебень). Заливали все около недели. Размер 7*10 метров плюс гараж 5*10 метров, одна перегородка у дома и гаража общая.
Подождали немного (неделю), сняли опалубку, вот что получилось. Проложили канализационные трубы, вывели их под фундамент, к будущему септику.
Привезли лес, 10 кубов. Доска 50 на 150, обычный не сухой.
Частые ошибки
Во время проектирования неопытные владельцы участков допускают ошибки:
Начинают стройку без проекта – часто это заканчивается лишними затратами. Без чёткого планирования невозможно рассчитать, сколько материала потребуется для изготовления того или иного узла, элемента. При этом не учитываются локальные нагрузки, действующие на важные точки здания. Это может окончиться трагедией – дом деформируется и рухнет.
Неправильный расчёт общих размеров по отношению к толщинам стен и перегородок. Многие забывают, что стены состоят из нескольких слоёв, в результате схема оказывается неверной.
Ненадлежащий расчёт конструкций. Иногда планируют устройство чрезмерно мощного фундамента под небольшой домик, а иногда – наоборот – двух или трехэтажное строение делают из слишком тонких или некачественных элементов (металлопрофилей, досок, брусков). В первом случае впустую тратятся значительные средства, а во втором – возникает риск обрушения дома.
Ответственные узлы строят из сырого дерева – через год из элементов выйдет влага, а затем древесина будет деформироваться. В лучшем случае всю постройку перекосит и потребуются значительные переделки.
Рекомендации
Строительство из древесных материалов без предварительной антисептической обработки недопустимо – даже в самом правильно спроектированном каркасном или обычном деревянном доме неизбежно будет выпадать определенное количество конденсата на разделах (границах) сред, которых в каркасных домах гораздо больше, чем в постройках из традиционных массивных материалов. Увлажненное дерево, содержащее в своей структуре органические элементы (полисахариды), становится отличной питательной средой для различных форм микрофлоры и микрофауны, представители которой легко могут разрушить волокна древесины за небольшой (1-2 года) промежуток времени.
Цены на средства для защиты древесины
Пропитка для дерева
Утепление пирога вертикальных каркасных стен допускается лишь жесткими плитами строительного утеплителя. Засыпные и рулонные материалы из-за усадки и перемещения вниз со временем могут использоваться только на горизонтальных частях или в кровлях с уклоном до соотношения 1:5.
При использовании экономичных версий плит утеплителей малой плотности рекомендуется для предупреждения сползаний закреплять каждый ряд плит распорками между плитами. Такое решение сделает конструкцию более дорогой, увеличит теплопроводность стен, поэтому выгодно использовать качественный утеплитель более высокой плотности. Размер проемов между стоек каркаса не должен превышать поперечный размер плит утеплителя – 600 мм. Еще лучше, если размер проема уменьшен до 590 мм, чтобы исключить щели между стойками и плитами утеплителя. Нельзя заполнять стены обрезками утеплителя – будет много щелей.
Проведение основных работ
Работы по постройке второго этажа осуществляются в несколько этапов
На каждом из них важно внимательно и ответственно подходить к выполнению всех пунктов, чтобы конструкция получилась надёжной и прочной. Рассмотрим, как сделать второй этаж в частном доме, без рисков и излишнего расхода материалов
Работы по укреплению фундамента
Для начала следует усилить фундамент дома, чтобы он смог выдерживать сразу два этажа. Так возводимая конструкция точно будет безопасной и не разрушит основу здания. Осуществляется это в несколько этапов:
- полностью освободить жилой дом от всех объектов и мебели;
- поднять здания домкратом на небольшое расстояние, чтобы было проще подобраться к фундаменту;
- натянуть на внешнюю сторону армопояс;
- укрепить стены при помощи возведения специальных дополнительных деревянных балок;
- по периметру каркаса произвести такие же работы по укреплению стен.
Поднятие домаИсточник vintsvaistroy.ru
Армопояс можно изготовить самостоятельно. Для этого под низ траншеи помещается большое количество песка. Сверху положить доски, чтобы получилось деревянное перекрытие. После чего осуществить натяжку арматуры. Это способствует тому, что фундамент сможет выдержать более сильные нагрузки.
Возведение дополнительного этажа
В следующем этапе можно уже приступать к постройке второго этажа. Работа начинается с подготовки и демонтажа крыши, которая мешает надстройке. Осуществлять работы нужно поэтапно в соответствии со следующим планом:
- Снять кровлю и устранить все несущие балки, которые мешают осуществлению работ.
- Поднять все необходимые инструменты и материалы на второй этаж. Сделать это можно при помощи специального оборудования или небольшого подъёмного крана.
- Следующим этапом является возведение новых стен. В качестве каркаса конструкции, на который потом будут крепиться стопила, используют деревянные балки.
- Установленную конструкцию обшить панелями ДСП. Для обеспечения большего тепла в помещении следует обшить утеплителем и изоляционным материалом.
- Установить несущие балки под крышу и обрешётку для монтажа кровли.
Установка балокИсточник ecodom.su
После последнего шага основная конструкция будет полностью установлена. Остаётся выполнить отделку стен, пола и потолка, а также позаботиться о монтаже лестницы к этажу.
Установка лестницы
После того, как все работы по возведению второго этажа были завершены, стоит определиться с расположением лестницы и окон. Для возведения лестницы придётся докупить дополнительные материалы. Она может быть как деревянной, так и кирпичной.
Для окон нужно рассчитать высоту проёмов. Установку лучше доверить мастерам, поскольку с пластиком трудно работать самому, чтобы впоследствии окна не пропускали холодный воздух. Перед установкой лестницы требуется также позаботиться о проёмах, которые можно вырезать в конструкции ДСП.
Деревянная лестница на второй этажИсточник lestnitsygid.ru
Как спланировать первый этаж?
Чертежи с планом первого этажа во многом похожи у всех домов. Как правило, здесь обустраивают большую зону гостиной и кухни, а также гостевой санузел. При грамотной планировке внизу может поместиться и гостевая спальня либо кабинет. Рассмотрим несколько интересных схем.
Дом из пенобетона/газобетона
Вход в жилище проходит через террасу 10,3 квадрата, на которой можно расположить пару плетёных кресел и журнальный столик, чтобы проводить там время тёплыми летними вечерами. Небольшая прихожая с правой стороны имеет вход в котельную 4,1 квадрата и в гардеробную 3,2 метра сквозь раздвижные двери-купе. При входе в основную часть дома с правой стороны находится большая ванная комната, а далее идёт просторная зона 19,4 кв. м, включающая гостиную и кухню.

Дом в стиле минимализм
Современный дизайн дач стал невероятно популярным в последние годы. Все чаще хозяева отдают предпочтение нестандартным строениям. Здание возведено по каркасной технологии. Главной особенностью первого этажа являются две террасы 9,59 кв. м, предназначенные для барбекю и семейных посиделок. В небольшом холле 4,6 метра будет достаточно места для шкафа-купе с зеркальными дверьми. С левой стороны небольшой санузел в 2,9 кв. м. Впереди гостиная зона площадью 16 м2, а за углом компактная кухня 8,1 квадрата.

Дом с гаражом
Автомобилю всегда необходимо место для стоянки. Зимой гараж особенно пригодится, ведь садиться в холодную машину – не самое большое удовольствие. А внутри помещения сохранится тепло, также гараж можно использовать в качестве кладовой, разместив там стеллажи для хранения. Дом имеет сразу два входа: один с боковой стороны, который ведёт в прихожую, а второй с торца в котельную, откуда есть прямой вход в дом. Холл 13,1 кв. м можно использовать по своему усмотрению, например, как кабинет или гостевую спальню.

Дом из профилированного бруса
На первом этаже имеются две небольшие террасы 6 и 7,8 метра, выход на которые идёт из кухни и комнаты. Небольшой холл ведёт в гостиную 17,5 квадрата, гостевой санузел и спальню или кабинет 8,8 м2. Через гостиную можно попасть в кухню-столовую 11,6 кв. м. Винтовая лестница ведёт из гостиной на второй этаж.

Дом с двумя спальнями
Из тамбура вы попадаете в небольшой холл, ведущий в гостевой санузел 4,1 кв. м, кухню 12,3 м2 и гостиную 14,3 кв. метра. Если семья в основном собирается на кухне, а большое количество гостей на даче не ожидается, можно превратить гостиную в спальню, или обустроить там же кабинет. Таким образом получится использовать пространство с максимальной функциональностью.

Дом с большой террасой и 5 спальнями
Главной особенностью этого проекта является большая терраса площадью 24 кв. метра, через которую лежит вход в дом. Такая дача станет прекрасным вариантом для многодетной семьи, где каждому необходимо своё пространство, пусть даже небольшое. Из прихожей вы попадаете в просторную зону кухни-гостиной, где с удовольствием будет проводить свободное время вся семья. С левой стороны находится санузел 2,5 метра и две спальни по 7,9 квадрата, которые можно отвести под детские.

Теория каркасного строительства
Состав основных элементов каркасного дома
Возведение домов всегда начинается с подготовительных действий:
- анализа участка – строения почвы и особенностей поведения грунта;
- проектирования здания – фундамента, расчёта самих конструкций, составляющих элементы будущего дома;
- формирование необходимой документации – чертежей, технологических карт;
- согласования бумаг перед началом строительства в разрешающих органах.
Основная особенность каркасного домостроительства заключается в использовании для основы элементов стен и перекрытий – бруса и металлопрофиля. В качестве наполнения – разные утеплители (минвата, пенопласт), которые закрываются изнутри и снаружи различными панелями – деревянными, металлическими, пластиковыми или комбинированными. Конструкция постепенно монтируется на фундаменте и параллельно обшивается – с внутренней стороны и с внешней. Это позволяет возводить здания небольшим бригадам рабочих – от двух человек, а также не использовать строительную технику – всё делается вручную.
Пример двухэтажного дома 6х6
В результате владелец может получить уникальное строение с необходимыми ему свойствами, что зависит от назначения здания, местного климата и финансовых возможностей.
Плюсы и минусы каркасных домов
В большинстве стран мира каркасное строительство становится всё более популярным с каждым годом. Тому есть несколько причин:
- общая стоимость квадратного метра – самая низкая среди всех прочих способов строительства. Дешевле только картонные дома или палатки;
- универсальность: возможность адаптировать постройку под жаркий и холодный климат, а также возводить простые хозяйственные домики;
- простота обслуживания – не требуется частое обновление фасадов, а ремонт производится так же легко, как и возведение;
- высокая скорость строительства – даже небольшая бригада из 2-4 человек может создать стандартный дом за 3-6 месяцев;
- малая теплоёмкость стен и горизонтальных перегородок – упрощает процесс отопления, себестоимость которого будет минимальной;
- неплохая звукоизоляция – при условии применения надлежащих материалов для утепления;
- каркасные дома самые безопасные – это касается и экологии, и сейсмоустойчивости. Постройки способны выдержать подземные толчки до 8-9 баллов.
Отдельно следует уточнить, что при необходимости можно возвести такой дом, который можно быстро разобрать, перевезти на новое место и снова собрать. Такую мобильность обеспечивает только каркасная и каркасно-модульная схемы строительства.
Но есть и отрицательные моменты:
Для снижения гулкости всей конструкции придётся закладывать в стены тяжёлые виды утеплителей – для дачи это не очень актуально, но дом, который предназначен для постоянного проживания, потребует это сделать.
Надёжный каркасный дом можно возвести лишь после скрупулёзных расчётов. Без соответствующего образования составить правильные чертежи очень трудно, поэтому рекомендуется обращаться к профессионалам. Это потребует выделить часть бюджета для заказа проектной документации, но зато даст гарантию, что дом не развалится через год-два.
Расположение дома на участке
Строительство небольшого каркасного дома 6х6 своими руками начинают с выбора места. Располагают его на участке, не только сообразуясь с личными пожеланиями.
Требования СНиП 30-102-99 и районной или городской архитектуры регламентируют размещение объектов на участке. Каркасный дом относится к III-IVкатегории огнестойкости, поэтому от соседнего существующего строения отступают не менее 15 м. Септики, туалеты, хозблоки с домашними животными должны быть удалены на 7-12 м. Жилое здание удаляют от «красной линии» не менее, чем на 5 м, от забора – 3 м.
Второе важное условие – дом желательно поставить в самой высокой точке участка. Тогда талая вода и осадки будет свободно стекать по склону, не проникая под фундамент
Третье обстоятельство, на которое обращают внимание, расположение постройки относительно сторон света. Дом желательно строить на севере или северо-западе земельного участка
Тогда солнце освещает территорию большую часть дня, а остекленные проемы смотрят на юг или восток.
Перекрытия и крыша
Прежде чем начать данный этап, необходимо монтировать подпорки пола. Если ведется строительство двухэтажного каркасного дома 8 на 8, то для второго уровня роль данных подпорок будут выполнять непосредственно сами стены.
Для монтажа кровли требуется установить каркас. Система стропил чаще всего собирается на земле, после чего поднимается наверх. Для стропил как правило используется брус с сечением 50 на 150 миллиметров и закрепляется под углом в 50 градусов.

Для покрытия кровли каркасного дома 8х8 можно использовать мягкую черепицу, ондуллин либо металлочерепицу. Конструкция крыши должна быть достаточно устойчивой, чтобы выдерживать вес снежного покрова, а также негативное внешнее воздействие окружающей среды.
Сборка каркаса
Каркасное домостроение опирается на нормы СНиП 31-105-2002, составленного на базе зарубежных регламентов.
На верх фундамента укладывают обвязочный брус, закрепляют строго по уровню. Каркас собирают традиционно, устанавливая поочередно стойки в вертикальное положение, или способом «канадская платформа». В этом случае сборку проводят на готовом черновом полу горизонтально с последующим монтажом секторов в проектную позицию.
Стойки из строганой доски размерами 150х50 или 200х50 мм устанавливают с шагом 600 мм, крепят к нижней обвязочной балке, начиная от угла. По верху каркас скрепляют прочным брусом — верхней обвязкой.
Оконные и дверные перемычки усиливают досками, уложенными на ребро. Толщина такого элемента зависит от размера проема. Если он шире 800 мм, ригель должен быть не тоньше 150 мм.
Каркас укрепляют укосинами из доски, врезая их в верхний и нижний пояс, или перфорированной стальной полосой. Если для обшивки применяют жесткие листы – многослойную фанеру, ОСП – дополнительные элементы не устанавливают.
Листы наружной облицовки располагают в шахматном порядке с разбежкой швов, длинной стороной параллельно фундаменту. Такая укладка жестко связывает каркас в горизонтальном направлении.
Правильный каркасный дом
Каркасное здание представляет собой жесткую раму из дерева или металла с заполнением эффективными утеплителями. Чаще всего используется минеральная вата как близкий по свойству к древесине материал. Его неоспоримое преимущество перед пенопластовой изоляцией — абсолютная негорючесть и экологическая безопасность.
Наружная обшивка выполняется из влагостойких материалов — ОСП, фанеры, сайдинга, фасадных панелей и т.д. Внутренняя — из гипсокартонных, гипсоволокнистых плит, дерева.
Каждый узел каркасного дома должен собираться правильно и обеспечивать прочность и устойчивость всей системы, отсутствие мостиков холода. Нормативы, которые регламентируют все детали технологии, — СП 31-105-2002. Каркасные здания позиционируются как энергоэффективные, и это действительно так, но при условии соблюдения всех требований их строительства.
Крыша
Скатная крыша состоит из стропильной системы, опирающейся на каркас наружных и внутренних несущих стен. Сечение и шаг балок принимается по таблицам действующего СНиП, они зависят от вида и материала кровли, предполагаемых нагрузок, конструктивного решения.

Кровля представляет собой сложный пирог, включающий:
- Сплошной кровельный настил, прикрепленный к несущему каркасу и защищающий дом от осадков и талой воды;
- Стропильные балки, воспринимающие все нагрузки от кровли;
- Утеплитель, пароизоляцию;
- Подшивку.
Такая конструкция обеспечивает сохранение тепла в чердачном пространстве. Если оно не эксплуатируется, утепляют перекрытие первого этажа.
https://youtube.com/watch?v=T8FW66m78v8
Поиск стандартной документации
В сети интернет есть много чертежей типовых строений, относящимся к каркасным домам. Но полный комплект документации для начала работ придётся готовить самостоятельно. Особенно это касается случаев, когда решено возводить четырёхэтажный дом. Тогда придётся проводить строительную экспертизу в обязательном порядке.
Чертёж стропил
Чертежи на заказ – как найти инженерную компанию
Самый простой способ подготовки документации – обращение в строительную контору. Конструкторы предложат базовый проект, после этого заказчик внесёт в него необходимые изменения и поправки, которые могут касаться:
- планировки;
- числа этажей;
- дополнительных элементов (дымоход, балкон, лоджия);
- строительных материалов.
- Конструктор учтёт пожелания заказчика и создаст необходимую документацию.
Самостоятельное создание чертежей
Подготовить чертежи каркасного дома своими руками можно двумя способами:
- Вручную – на бумаге, используя чертёжные инструменты.
- При помощи специального программного обеспечения на ПК.
При выборе первого варианта нужно учесть, что профессиональные строители, если они будут заниматься возведением, лучше понимают документацию, которая выполнена по строительным нормативам.
Использование программ
Чтобы сделать чертёж дома на ПК не обязательно приобретать дорогостоящие профессиональные программы – для этого имеются бесплатное (или недорогое коммерческое) ПО для начинающих. С его помощью можно создать не только наглядные чертежи, но и 3D-модели для лучшей визуализации.
Примеры
В качестве одного из недорогих примеров – проект дома «Марк» 6х3 м.
- Дом на один этаж имеет полезную площадь в 20 м2. Не требует капитального ленточного фундамента – устанавливается лишь на столбчато-монолитные опоры.
- Обвязка выполнена из пилёного бруса 10*15 см.
- Лаги – из бруса 20*15 см.
- Высота каркаса – 2,4 м. Изготовлено из доски 4*15 см. Пароизоляция – внешняя и внутренняя, однослойная. Утепление минватой толщиной в 10 см. Изнутри каркас обшит вагонкой толщиной до 2 см.
- Перегородки первого и чердачного (мансардного) этажей – брус толщиной до 10 см.
- Черновой пол – доска обрезная толщиной до 2,5 см.
- Чистовой пол – доска до 3,5 см.
- Утепление потолка – двусторонняя пароизоляция с минватой в 10 см.
- Мансардный этаж – с высотой до 2,2 м, конструкция из бруса с сечением в 4*10 см. Обшивка вагонкой – той же толщины, что и на первом этаже. Утепление и водоизоляция – такие же.
- Стропилины – брус 4*10 см, шаг монтажа – 60–90 см.
- Подстропильные основания (лежни, перекладины) – брус 4*15 см, с таким же шагом монтажа.
- Ондулиновая или профлистовая кровля, металлочерепица.
- Конёк крыши поднят на 3,5 м от мансардно-этажного перекрытия (пол в мансарде).
- Фронтоны – каркасно-щитовые, брус 4*15 м, обшивка вагонкой до 2 см толщиной, паро- и теплоизолированы, как и в предыдущем случае. Обшивка углов, карнизов – для защиты от летней жары и зимнего холода.
- Деревянная лестница на входе – брус 9*13 см, настил – трёхсантиметровая (в толщину) доска.
- Наружная дверь – утеплённая стальная, 86*205 см. Межкомнатные двери – деревянные, такого же размера.
- Терраса и балкон устанавливаются отдельно. Они заметно изменят квадратуру основания – иногда такие конструкции выходят за пределы отмостки вокруг строения.
Сборка конструкции производится за один день. Домик отличается упрощёнными процессами строительства – модульная сборка согласно заявленной схеме. Но до его доставки и сборки хозяин участка должен подготовить место – расчистить нужный прямоугольник площадки от растительности и постороннего мусора.


Плюсы двухэтажного дома
Двухэтажный каркасный дом своими руками может построить практически любой человек. Для этого необходимы определенные знания, которые можно получить из данной статьи. А строительные навыки развиваются за весьма быстрый промежуток времени.
К основным преимуществам двухэтажных домов специалисты относят следующие качества:
- Возможность построить дом на ограниченном земельном участке. Если у человека площадь его владений не позволяет возвести большой дом в один этаж, сооружение двухэтажного каркасного здания – наиболее надежный и корректный выход из сложившейся ситуации.
- Освобождение места на участке для сада, огорода или же детской площадки. Как в сельской, так и в городской местности, перечисленные элементы экстерьера дома являются вполне необходимыми большинству людей.
- Экономия финансовых средств. Это связано прежде всего с компактными размерами некоторых конструктивных элементов, требующих значительных денежных затрат. Прежде всего это касается крыши, фундамента и теплоизоляционных слоев. Поэтому цена двухэтажных каркасных домов является вполне доступной большинству жителей страны.
- Возможность четкого зонирования внутреннего пространства. Планировка двухэтажного каркасного дома позволяет создать на первом этаже помещения для приема гостей и основного быта, а на втором этаже спальни.
- Красивый и презентабельный внешний вид. С уличными светильниками на фасаде, каркасное сооружение будет выделятся из всех остальных зданий на улице, привлекая взгляды соседей.
Готовый дом в два этажа.
При этом важно понимать не только то, почему данные здания стоит возводить, но и то, как построить двухэтажный каркасный дом, чтобы он длительное время использовался на благо владельца и его семьи
Дома более 200 кв.м.
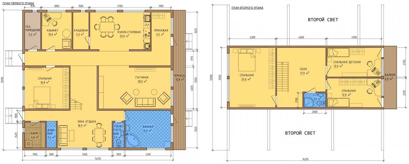
Размер строения: 13.2 на 16.2Площадь: 308 кв.м.
Великолепный дом в стиле шале. Имеется зона СПА, а также балкон большой площади и терраса, второй свет с панорамным остеклением. Несмотря на каркасную технологию возведения, дом напоминает брусовый, имеет лаги второго света, а также колоны на балконе и террасе. Однако в отличии от дома из бруса, не требуется ожидания усадки строения после его возведения. Монтаж возможен на основание любого типа с любым рельефом. Предусмотрен камин в гостиной.


Размер строения: 10.5 на 13Площадь: 242 кв.м.


Очень просторный и удобный дом, позволяющий с комфортом проживать круглый год большой и дружной семье. Имеется помещение под котельную и прачечную, 2 лоджии с большой площадью остекления, красивый вход с окошками по бокам, просторные санузлы, вместительные кладовки.
Вот мы и показали наиболее популярные проекты каркасных домов в 2 этажа. Надеемся, наша статья поможет вам сделать оптимальный выбор.
Двухэтажный каркасный дом 6х4
Планировка дома размером 6х4 включает минимальную планировку комнат. Обычно общая площадь их составляет около 40 кв. м. Первый этаж подразделяют на гостиную и кухню, а мансардный этаж отводят под спальню.

Фундамент — бетонное армированное основание, стены: каркас — брус 100х100 мм, 100х50 мм, перекрытия – балки размером 150х50 мм, снаружи обшит ОСБ плитой, в качестве гидроизоляции применен Изоспан, утеплитель – базальтовые листы толщиной 100 мм, отделка сайдингом или декоративной плиткой снаружи и вагонкой внутри дома. Кровля выполнена из ондулина или металлочерепицы.

Стоимость такого жилья колеблется от 550 тыс. руб. до 1500 тыс. руб.
Определение типа грунта
Каждый дом стоит на фундаменте, который опирается на грунт. На большой части территории нашей страны – глинистые почвы, обладающие пучинистостью – свойством увеличиваться в объеме при зимнем замерзании.
Пучинистость характерна для глинистых, суглинистых и супесчаных грунтов, а также гравелистых песков и крупнообломочных пород с содержанием глины от 10 %.
В большой степени морозное пучение зависит от влажности почвы. При высоком УГВ вода по мельчайшим капиллярам поднимается к поверхности земли, где зимой превращается в лед.

Поверхностные талые и дождевые воды также насыщают грунта влагой. Они способны при замерзании выдавить из земли фундамент или его часть. В конструкциях появляются трещины и деформации, что приводит к преждевременному разрушению строения.
Каркасный дом намного легче кирпичного или бетонного. Он не требует возведения мощных фундаментов, опирающихся на глубокие плотные слои земли ниже уровня промерзания. Но противостоять силам пучения, создавая встречное давление большой массой, он не может.
Чтобы построить каркасный легкий дом 6 на 6 своими руками и избежать его преждевременного разрушения, на этапе проектирования, возведения и эксплуатации применяют методы борьбы с пучением:
Конструкция фундамента должна обеспечивать подвижку строения вместе с сезонными колебаниями грунта или не реагировать на них. В первом случае это плита, во втором – винтовые сваи;
Не допускать переувлажнения подстилающих слоев почвы. Это достигается дренажом, устроенным под подошвой фундамента, отмосткой вокруг строения, отведением дождевых вод и стоков с помощью ливневки;
Утепление отмостки, цоколя и фундамента поможет избежать замерзания воды в прилегающих слоях земли;
Планировка дома 6 на 9
Планировка дома 6 на 9 должна быть составлена таким образом, чтобы «работал» каждый квадратный метр. Тогда в этом небольшом доме удастся разместить не только основные помещения, но и вспомогательные, а также сделать их максимально-просторными и удобными для эксплуатации. Подобные дома принято относить к вариантам эконом-класса — как по стоимости строительства, так и по площади. Между тем, общая площадь такого строения значительно превышает габариты городской трехкомнатной квартиры, да и по стоимости обходится дешевле.
Одноэтажный дом 6 на 9 метров обычно представлен большой гостиной, кухней, спальной комнатой, санузлом и террасой. В таком исполнении планировка дома 6 на 9 соответствует городской двушке. Если же обустраивается мансарда дома, получается организовать еще одно помещение. Двухэтажный дом предоставляет хозяевам еще больше свободы: в этом случае план дома 6 на 9 (из деревянных или каменных материалов) увеличивается на дополнительные 54 м², которые могут быть использованы для обустройства детских и спальных комнат, а также для гардеробной, ванной и прачечной комнаты.
Площадь двухэтажного дома 6 на 9 достаточна для проживания семьи с 1-2 детьми. Каждый из членов семьи в таком доме может рассчитывать на собственную небольшую комнату. При этом, место останется и для гостей, и для организации подсобных помещений. Таким образом, планировка дома 6 на 9 может быть удобной и функциональной.
Планировки домов 6 на 9 – одноэтажные, с мансардой, двухэтажные
В каталоге планировок частных домов можно выбрать наиболее соответствующую запросам семьи планировку:
- дом 6 на 9 – одноэтажный;
- дом 6 на 9 – двухэтажный;
- дом 6 на 9 – с мансардой, гаражом и печкой, с верандой, террасой или балконом.
Планировка дома 6 на 9 – очень простое и элегантное решение. Дом не узкий и не длинный.
- Комнат 4
- Этажность 1
-
Площадь 85
Двухэтажный дом – планировка 6 на 9
Очень успешная планировка 6 на 9 метров, большая гостиная, напротив которой расположена кухня. Санузел прекрасно вписался возле лестницы. Капитальные стены расположены одинаково как на первом, так и на втором этаже, поэтому план раскладки плит перекрытия будет практически одинаков.
- Комнат 3
- Этажность 2
-
Площадь 70
Очень приятная планировка 6 на 9 – с террасой и верандой одновременно.
- Комнат 4
- Этажность 1
-
Площадь 40
Современные строительные технологии дают возможность создавать дома различных конфигураций и уровней, однако большинство людей до сих пор отдают предпочтение малогабаритным домам с индивидуальной планировкой.
Проект дома 6 на 9 метров – идеальное решение для тех, кто хочет иметь свой дом. На первый взгляд, он кажется маленьким, но в процессе эксплуатации становится ясно, что его площадь позволяет организовать полноценные помещения, с улучшенной планировкой и современной организацией пространства.
Ниже представлены рабочие проекты домов 6 на 9 из:
- пеноблока,
- бруса,
- бревна,
- камня и других, не менее качественных, материалов.
Одноэтажный проект дома 6 на 9
Дома с одним этажом очень комфортны для постоянного проживания. При рациональном планировочном решении, они позволяют выгодно зонировать помещение. Выделенные хозяйственная, жилая, рабочая, техническая зоны, расположенные на конкретном расстоянии между собой, дают возможность разместить в доме семью, включающую разные поколения.
Одноэтажный проект дома 6 на 9 с отличной планировкой и стилевым решением таит меньше опасности для детей и пожилых людей, не требует больших капиталовложений, его проще ремонтировать.
Двухэтажный дом 6 на 9
При ограниченных размерах земельного участка, отдавать предпочтение лучше двухэтажному дому. Кроме того, такой выбор сбережет финансы, отведенные на устройство фундамента и крыши, а его компактность позволит расходовать меньше строительных материалов.
Двухэтажный проект дома 6 на 9 для постоянного проживания будет служить долгое время, если монтировать качественные системы водоснабжения и отопления. Запроектированные дома в два этажа отличаются высокой эргономичностью, экономичностью площади, большой вариативностью наполнения внутреннего помещения.
Дом 6 на 9 с мансардой
Выгода от наличия мансарды не подлежит сомнению. В первую очередь, это архитектурная и дизайнерская привлекательность. За счет наклоненных стен, мансардных окон, выходящихв небо, появляется широкий простор для осуществления дизайнерских решений.
















































