Особенности проектирования
При проектировании стоит ориентироваться не только на внешний вид дома 6х8, но и на его функциональность. Необходимо в плане этажей удобно расположить комнаты, бытовые приборы и коммуникации. Если проект будет спланирован детально, не потребуется покупка лишних строительных материалов для черновой отделки. Таким образом, можно легко представить, как будет выглядеть будущий коттедж.
В проекте следует максимально приблизить форму помещений к прямоугольнику или квадрату. Это облегчит в дальнейшем расстановку мебели. Проект получится создать в онлайн-программах, но лучше предварительно проконсультироваться со специалистами. Иначе есть риск появления проблем с технологической стороны.
При правильном размещении помещений в доме здание будет комфортным для жизни. Помещение с котельной должно располагаться на первом этаже. Предусматривается вариант с печкой, ее лучше возводить в центре дома.
Стоит соблюдать следующие принципы:
Кухню площадью 4 кв. м и санузел сделать полностью глухими, окружить несколькими жилыми комнатами;
Для несущих стен выбрать толщину 200-300 м. Этого хватит для выдерживания нагрузки крыши и влияния плохой погоды;
Гипсокартонные перегородки между комнатами создать толщиной 90-120 мм
Следует уделять внимание ширине дверного блока;
Высота здания – 2,7-3 м;
Тамбур в маленьком коттедже создавать необязательно. Хватит коридора 120-150 см шириной.
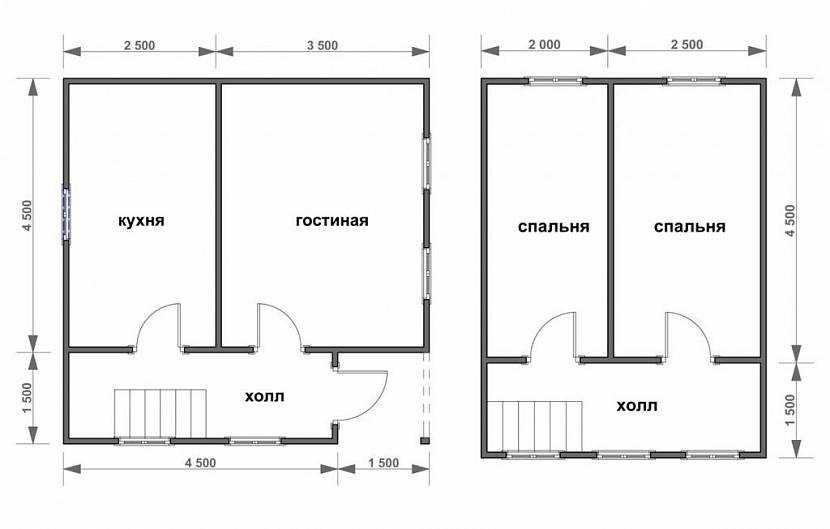
Стандартный проект коттеджа 6х8 предполагает расположение санузла, гостиной и кухни на нижнем этаже, детской комнаты и спальни для взрослых – на верхнем. Если дом 6х8 – гостевой, то его можно объединить с главным коттеджем с помощью веранды или террасы. Тогда нужно создать больше спален и гардеробную, сделать их большей площадью. В обеденной зоне и дополнительных комнатах для хозяйственных нужд отпадает необходимость, санузлы остаются.
Проектирование первого этажа
Для проекта одноэтажного дома 6х8 ленточный фундамент не подойдет. Если в здании два этажа, нужно более надежное основание. Фундамент на винтовых сваях – это хорошее решение под брусовой, каркасно-щитовой, бревенчатый коттедж.
Выбор строительных материалов
Для возведения дома 9х9 можно использовать кирпич, дерево или пеноблоки. Дороже всего обойдется кирпичное жилье, немного дешевле стоит дом из деревянного бруса. Каркасная технология помогает найти оптимальный вариант по соотношению цены и качества между этими двумя вариантами.
Каркасная технология возведения дома на ленточном фундаментеИсточник moydom.net.ua
Но дешевле всего будет стоить дом из пеноблоков. И это не единственное преимущество выбора описываемого материала.
- Его можно будет возвести в максимально короткие сроки.
- Строение при этом не дает усадки.
- По сравнению с кирпичом пеноблок лучше обрабатывается.
- При помощи него гораздо проще делать эркеры, строить башенки, делать другие нестандартные архитектурные элементы.
- Блоки мало весят, они не горят, хорошо переносят морозы, обладают высокой паронепроницаемостью.
- Материалы, изготавливаемые при помощи ячеистого бетона – хорошие теплоизоляторы.
В процессе изготовления жидкая вязкая основа под давлением заливается в блоки. Это позволяет получать идеально ровную заготовку, внешняя поверхность которой не имеет открытых пор. Благодаря этому пенобетон не впитывает в себя влагу из внешней среды, поэтому лучше сохраняется. В процессе эксплуатации пеноблоки набирают прочность. При этом стены, возведенные при помощи неих, легко дробить для прокладки коммуникаций. Их поверхность проще штукатурить, чем поверхность кирпичной стены. Но для проведения такого типа работ требуется использование специальных штукатурных смесей. Это обязательно нужно учитывать.
Дом с мансардой из пенобетонаИсточник nibulon.ru
Выбор кирпича для введения компактного дома оправдан тогда, когда планируется круглогодичное проживание в доме, когда есть желание построить дом, что называется «на века». Дом из бруса поможет сэкономить на внутренней отделке дома и на отделке фасада. Брус сам по себе выглядит великолепно, если он сложен с соблюдением всех технических требований, можно отказаться от дополнительного декорирования.
Рекомендации специалистов
Применение таких советов не обязательно, но многолетний опыт доказал их эффективность.
- «Глухая» организация санузла в окружении жилых комнат.
- Толщина внутренних стен возможна с показателями в 200–300 мм — этого хватает даже для несущей стены одноэтажного дома.


Для обеспечения комфортного проживания 2 человек не обязательна большая площадь при грамотной планировке. Работа с учетом нескольких приемов позволит создать дом мечты, место, которое станет частью души.
- Толщина ГКЛ (гипсокартонных листов) для обшивки стен – 90–120 мм. При выборе показателей учитывают ширину дверного блока.
- Высоту дома выбирают в пределах трех метров.
В целях экономии внутреннего пространства от тамбура лучше отказаться, заменив его крытым крыльцом и небольшим, шириной до полутора метров, коридором.

При разработке планировки и создании чертежей небольшого дома 6х8, нужно учесть несколько моментов. В доме обязательные должны быть следующие помещения:
- гостиная до 10 м², кухня 10–15 квадратов, для общей экономии можно их объединить, как в основном сейчас и поступают;
- санузел — совмещенный вариант позволит существенно сэкономить пространство;
- спальня — ее наличие обязательно, она может около до 10 м² или поменьше — 7м².
- бойлерная (котельная) — ее место рядом кухней и санузлом, достаточно полутора-двух метров;
- коридор — его размеры должны соответствовать общей площади дома.

Правила установки и эксплуатации
Форму, внешний вид печи фиксирует ее чертеж. Многие стараются установить ее где-то в углу, чтобы никому не мешала, не занимала много места. Но это неглавный критерий установки. Наиболее рациональное ее расположение отражает, как правило, каждый разработанный фирмой проект дома с обогревом.

Тогда эффект от него будет наибольший, потому что оно успешно будет прогревать все помещения. Как показала практика, никак нельзя устанавливать его у наружной стены, чтобы не обогревать улицу.
Если план жилища с печной системой разработан профессионально, то после его реализации даже в двухэтажном доме круглый год будет тепло и уютно. Печку рекомендуется планировать в загородных или дачных домах не выше двухэтажных. Если на втором этаже все же прохладно, то некоторые жильцы его на зиму закрывают, живя только на хорошо отапливаемом первом.

Ошибочно думать, что если в небольшой постройке, например, 6х6, поставить мощную печь, то для обогрева достаточным будет небольшое количество дров. Это вовсе не так. Все они уйдут только на слабый ее разогрев. А комнаты останутся холодными. Каждый дом с печью оборудуется отопительным сооружением, соответствующим тому пространству, которое оно предназначено обогревать.
Еще одно важное правило, которым не следует пренебрегать, — это установка печи на отдельный фундамент. Он не может быть единым для нее и для всего дома
Это должен четко демонстрировать как общий проект жилища, так и отдельный чертеж сооружения для топки.
Зная правила установки, не следует забывать о правилах пользования. Дом с печью предполагает неукоснительное выполнение предписаний пожарной безопасности
И неважно, какой он площади, 6х6 или значительно больше. Следует помнить, что заслонку дымохода закрывают вовремя
Если угли недостаточно прогорели, помещение заполнит угарный газ. А последствия этого весьма печальны. Если закрыть ее слишком поздно, то драгоценное тепло выйдет в трубу. Ремонт печи выполняет обычно тот, кто ее устанавливал.


Популярные проекты баньки 6*6
Ниже приведены наглядные примеры чертежей квадратных банных построек разной сложности с указанием размеров помещений.
Одноэтажные
Одноэтажная баня содержит парилку, душ, предбанник. Последний также выполняет функцию комнаты отдыха. Допускается вариант отдельной комнаты отдыха и небольшой раздевалки на входе. Если размеры душевой позволяют, то можно дополнительно установить унитаз.
Красивый проект деревянной бани с открытой террасой из бревна. В зависимости от конструкции попасть на террасу можно из прихожей или из комнаты отдыха. На такой площадке отлично поместится переносной мангал, барбекю, небольшой стол со стульями.
Двухэтажные
Двухэтажная баня ‒ это дополнительное пространство для отдыха. На первом этаже компактно разместится парная, моечная и комната отдыха. Вместо обычного крыльца можно обустроить продолговатую террасу. На второй этаж ведет лестница, где находится спальня. Для удобства рядом со спальней раздельно выделяется место для туалета.
Слева – план первого этажа, справа – второго.
Встречаются проекты, где второй этаж служит тренажерным залом или бильярдной.
Оригинально смотрятся двухэтажные бани с вальмовой, ломаной крышей. Но их возведение обойдется в разы дороже двухскатной.
Дом-баня (с мансардой и террасой)
При правильной планировке здесь хватит места:
- для парной, душевой;
- санузла;
- комнаты отдыха;
- тамбура или раздевалки;
- спальни;
- бильярдной.
Застекленную террасу можно переделать из летней зоны отдыха в столовую, кухню с панорамным видом.
Чтобы сэкономить пространство, моечную совмещают с санузлом.
С террасой или верандой
Террасу можно застеклить и сделать выход из комнаты отдыха на эту часть постройки, а предбанник расширить. Так хватит места для установки небольшого бассейна. Альтернатива ‒ обустроить небольшую кухню, а на террасе будет столовая.
Возможности возрастут, если баня имеет мансардный этаж. Помимо террасы при входе, на втором этаже тоже можно оформить небольшую площадку для отдыха на свежем воздухе.
С крыльцом
В такой бане рассчитан каждый метр, чтобы максимально использовать полезную площадь. Тут учтены просторная парная, душевая, небольшой санузел, есть место и для комнаты отдыха.
Крыльцо может накрываться, так и быть без него в виде открытой площадки перед входом в баню.
Расширить пространство всегда можно за счет пристроенной террасы или установленной неподалеку беседки.
С комнатой отдыха
Удобная планировка бани с комнатой отдыха. После приема банных процедур можно присесть в кресло, на диван. В интерьере комнаты уместен будет стол со стульями, телевизор на стене. Если площадь позволяет, то в этом же помещении устанавливается бассейн.
Когда баня становится местом для приема гостей, празднования различных мероприятий, то комната отдыха просто необходима. Поэтому нужно заранее продумать, какое количество отдыхающих будет помещаться в баньку.
С мансардой
Обустройство мансарды дает дополнительное свободное пространство. Назначение ее зависит от предпочтений владельцев.
Здесь можно оборудовать:
- столовую или гостиную;
- детскую игровую комнату;
- бильярдную;
- тренажерный зал;
- спальню;
- домашний кинотеатр.
Можно добавить к постройке шесть на шесть просторный балкон.
При этом важно заранее продумать систему отопления, чтобы мансарда отапливалась зимой. Для удобства на втором этаже размещается небольшой санузел. Поэтому подвод водоснабжения и канализации тоже должен быть хорошо продуман
Поэтому подвод водоснабжения и канализации тоже должен быть хорошо продуман.
С бассейном
Но в современном оформлении построек бассейн смело размещают и в бане. Главное, чтобы он находился недалеко от парной.
С теплым предбанником
Отапливаемый предбанник ‒ снижает потерю тепла и расходы на обогрев банных помещений. Холодный сквозняк не будет попадать в комнату отдыха.
Для экономии места во многих проектах парную совмещают с душевой, а предбанник становится полностью входной зоной в виде раздевалки.
С беседкой
Для любителей шашлыков отлично подойдет баня с беседкой. Беседка может быть пристроена к одной из стен или соединяться с основной постройкой через крытый коридор. Самым большим спросом пользуются деревянные конструкции из бруса, бревен или комбинированные с камнем.
Крытое помещение станет дополнительной зоной отдыха. Здесь компактно станут барбекю, мангал и стол со скамьями, стульями.
Планировка дачного дома
Каркасный садовый дом размером 4х5 не предвидит круглогодичного проживания, поэтому план чертежа дома выглядит просто, без учёта коммуникационных элементов, что позитивно отразится на финансах и скорости возведения конструкции.
В проект дома не включается система отопления и санузел. При необходимости обогрева устанавливаются переносные тэны или обогреватели. В план застройки входит только система электроснабжения.
При построении на участке садового домика уместно рассмотреть вопрос удешевления строительства и используемых материалов.
Каркасные дома 6 на 6 с мансардой
Основным преимуществом каркасного дома 6х6 с мансардой является увеличение полезной площади практически при одинаковых затратах с одноэтажным жильем. Мансарда не является полноценным этажом, а ее ограждающие конструкции объединены с кровлей. Большая часть расходов уйдет лишь на увеличение площади кровли и на отделку внутренних стен.

Пример планировки каркасного дома 6х6 с мансардойИсточник karkasnik-stroy.ru
Как эффективно составить планировку каркасного дома 6х6 с мансардой
Зачастую дом 6 на 6 с мансардой, также как и двухэтажный, предусматривает, что все помещения общего пользования будут располагаются на первом этаже, включая санузел, а комнаты для отдыха – на втором. Недостатком является высота потолков в помещениях, расположенных на мансардном этаже, она будет ниже, чем в основной части дома.
Подробности
Одноэтажный дом с размером 6 на 9
Планировка дома в один этаж, длина и ширина которого 6 и 9 метров соответственно, не требует использования особых хитростей. Одноуровневое компактное строение будет очень удобным при обычном решении пространства изнутри. Но чтобы дом казался больше, лучше, чтобы он был спроектирован с открытым видом планировки, а именно с минимальным числом перегородок. Так и составляют проекты квартир-студий. Минусом такого дома с одним этажом с малой площадью, а также сложность в изоляции тихой спальной зоны от зала. В идеале следует разделить частный дом на левое и правое крыло, каждое из которых поместит в себе одну из зон – гостевую или же спальную. В роли буфера будет выступать входной холл, который размещен по центру представленной планировки
Важно отметить, что в небольшом доме не должно быть много помещений технического назначения и коридоров. Внутренняя облицовка должна быть светлой, а при интерьерном обустройстве лучше использовать ограниченную цветовую палитру, так как избыток оттенков «съест» пространство
Ниже представлен реальный проект одноэтажного дома, а наглядно его увидеть можно в следующем видео.
Двухэтажный жилой дом
В доме, где есть сразу два этажа, причем он занимает площадку размером 9 на 6 метров, может с удобством разместить большую семью. Второй домовой уровень обычно отводят для спальной зоны, и планировочные особенности зависят от количества домочадцев и образа жизни. Например, таким образом, если в семье есть уже подростки, то вы сможете обустроить сразу 2 зала для гостей, чтобы представители разных поколений смогли отдохнуть с друзьями, при этом не мешая друг другу. А для семей, где есть пожилые люди, рекомендовано разместить одну из спален на первом этаже. Важным элементов строения в 2 этажа будет межэтажная лестница, которая занимает пространство на втором и первом этаже. Часто при планировке маленьких коттеджей для экономии места делают неудобные и узкие лестницы, изредка даже винтовые
Но тут важно помнить о том, что все элементы конструкций должны быть в первую очередь не опасными и беспроигрышными. По такой причине следует монтировать удобную маршевую лестницу с большими ступеньками
Для экономии места можно обустраивать в нише под ступеньками хранилище или шкаф для того, чтобы складывать туда бытовые принадлежности. Наглядно вы увидите один из двухэтажных коттеджей сможете увидеть в видео.
Дома с мансардами
Планировка каркасного одноэтажного дома 6 на 9 метра очень популярный – мансардный коттедж с террасой, план которого включает встроенные гаражи, и это не планировка дома 9 на 9, но зато там куда больше шансов для обустройства уюта, чем в одноэтажном. Такие дома по максимуму функциональные, и они не так уж много весят, как дом с двумя этажами (полноценными), и потому его можно выстраивать на недорогостоящем упрощенном основании.
И действительно, жилая площадь в мансарде, имеющая скошенную потолочную линию, необычные пропорции и верхнее освещение выйдет довольно стильным и уютным. Но у мансарды есть и недостатки:
- Окна в мансарде, которые устанавливают в саму плоскость кровли, будут стоить намного дороже, чем обычные.
- Вовсе не все мебельные предметы подойдут для комнат на мансарде.
- Крышу мансарды стоит как можно лучше утеплить и заизолировать от воздействия влаги, а это очень дорого.
- Жилого места в мансарде намного меньше, чем на полноценном этаже без скошенных стенок.
Посмотрите на фото планировки дома с мансардой.
Дизайн дома 6*9 метра
Чтобы придавать загородному дому максимально живописный и запоминающийся внешний вид, проектировщики используют много архитектурно-декоративные элементов, к примеру, эркеры, оконные проемы, башенки, сложные формы крыши и пр. Но эти элементы ощутимо повысят цену на возведение дома.
Одноэтажный дом 6 на 9 с формой «прямоугольник» и простой двускатной кровлей является самым экономичным и в строительстве, и в эксплуатации коттеджный вариант. Украшать дома прямоугольной формы можно лишь парой способов – посредством контраста цветов или украшения, к примеру, лепниной.
Первым метод идеально подойдет для построек в современном стилевом направлении, а второй для классических частных домов. Отделывать фасады можно посредством штукатурки, панелей из пластика, лицевыми кирпичами или сайдингом.
Для цокольной отделки применяют керамогранит, натуральный или искусственный камень. Деревянные частные дома в наружной отделке не нуждаются, и потому их внешний вид прорабатывают до мелочей еще при процессе проектирования. Домовую демонстрацию вы увидите в видео.
Особенности деревянных коттеджей
Дерево — это традиционный материал, используемый для возведения загородных домов. Оно является натуральных, экологически чистым и безопасным, а также обладает превосходными эксплуатационными характеристиками. Помимо этого, данный материал превосходно сохраняет тепло, что позволяет неплохо экономить на отоплении жилья.
Деревянные коттеджи смотрятся очень привлекательно, поэтому внутреннее пространство комнат можно никак не отделывать. Чаще всего люди предпочитают оставлять комнаты в первозданном виде, поскольку так они смотрятся натурально и наполнены особой атмосферой и домашним уютом.
Помимо натуральности, древесина обладает небольшим весом, поэтому при строительстве зданий не нужно укреплять фундамент. Хватает даже обычного лестничного не слишком заглубленного основания. Что касается строительных материалов, то чаще всего используют бревно и цельный или клееный брус.
Обзор проектов
Существует два наиболее популярных проекта, дополняемые при необходимости цокольным помещением.
Внутренняя душевая – 1,1 м2, тамбур – 2,5 м2, гостиная – 11,2 м2. Второй этаж – спальня на 13,7 м2. На участке проект занимает свои 18 м2 – вместе со стенами.




Обустроить чердак в виде антресоли возможно, лишь когда крыша двускатная. На практике при проживании вдвоём от этого варианта чаще отказываются, заменяя чердак на полноценный второй этаж. Мансарда для таких миниатюрных домов – неразумное расточительство, поэтому рекомендуется сразу возводить второй этаж. Толщина стен при этом должна быть не менее, чем полтора-два кирпича- «стопятидесятки». В качестве материалов для садовых деревянных домов – брус, бревно и доска. Дача, на участке которой стоит дом из дерева или кирпича, смотрится по-современному даже в наши дни.
Правила проектирования
Правильно запроектировать маленький дом, чтобы он стал полноценным комфортным жильем непросто. Но если придерживаться некоторых правил, можно получить красивый и удобный малогабаритный загородный коттедж. Основное правило – минимум перегородок. Нижний этаж, который зачастую отводится под гостевую зону, планируется единым помещением, включающим прихожую, гостиную, кухню и столовую. Стенами ограждается только санузел. Иногда отделяют прихожую, чтобы она препятствовала проникновению холодного воздуха и пыли с улицы в жилые комнаты.
Гостевая зона в доме 6 на 6Источник centermira.ru
Второе правило – планировка без коридоров. Коридор не является полезным помещением. Он служит для сообщения между разными зонами в больших домах. Дом 6 6, планировка которого содержит только самый необходимый минимум помещений, должна быть лишена таких архитектурных элементов.
Еще одно правило – необходимо грамотно использовать каждый метр внутренней территории здания. Так, например, под лестницей предусматривается установка кладовой или шкафа. Любая ниша заполняется встроенной мебелью или оформляется как дополнительная зона отдыха. Если мансарда запроектирована с низкими подскатными стенами, вдоль них устанавливают стеллажи или полки.
Рациональное использование пространства под скатами мансардной кровлиИсточник yandex.com
Сэкономить пространство можно и при проектировании санузлов. В доме с мансардой их как правило два – по одному на каждом этаже. Для рационального распределения пространства следует один из санузлов сделать очень маленьким. В нем должен уместиться только унитаз и умывальник. Второй санузел, обычно тот, который на втором этаже, проектируется как большая ванная комната, вмещающая всю необходимую мебель и сантехнику.
Что сделать, террасу или веранду
Пристройка в виде террасы или веранды позволяет существенно расширить площадь дома. Но следует знать, что между ними существует значительное различие. Терраса, это открытая площадка, часто не имеющая навеса. Пользуются ею исключительно в теплое время года.

Иногда терраса пристраивается со стороны, противоположной входу в дом. При таком планировании из комнаты на террасу следует сделать отдельный выход. Преимущество такой планировки в том, что из дома есть выход прямо в сад.

В отличие от террасы, веранда всегда находится под одной крышей с домом и бывает открытого типа и застекленная. Возводится она, как правило, одновременно с домом, и под нее устраивается ленточно-свайный фундамент. Утеплив веранду, ее можно использовать круглый год как жилое помещение.

С этой точки зрения веранда намного практичнее террасы. Кроме этого, она является тепловым буфером между жилыми комнатами и двором, поэтому в доме с верандой отпадает надобность в прихожей.

Если изначально дом построен без веранды (или террасы), сделать ее можно сделать через несколько лет, во время эксплуатации дома. Пристройка делается в виде прямоугольника вдоль фасадной стены или в форме квадрата, смещенного к одному из углов. Входная дверь сначала ведет на веранду, а через нее во внутренние комнаты дома.


















































