Особенности строительства
Возведение дачи по каркасной технологии своими руками довольно легко осуществить, если следовать пошаговой инструкции. По ней можно построить здание для сезонного проживания, а увеличив сечение основных опор и толщину теплоизоляции, можно сделать его удобным для круглогодичного пребывания на даче. Основной порядок действий будет таким.
- Подготовка фундамента. Можно использовать ленточный или столбчатый, но чаще всего под небольшие дачные дома подводят свайное основание винтового типа. При необходимости его усиливают заглубленной сборной или монолитной лентой между опорами, покрывают гидроизоляцией.
- Формирование нижней обвязки. Именно она будет отвечать за равномерное распределение нагрузок, обеспечит надежную фиксацию сборного домика на фундаменте. Изготавливают обвязку из бревна или бруса из хвойных пород древесины, поверхность обрабатывается антисептиком и антипиреновым составом.
- Настил полов. Для этого на обвязке монтируются горизонтальные и поперечные балки с шагом около 1,2 м. Они выравниваются по уровню. Закрепляются на обвязке. По низу оббиваются бруском, служащим опорой для чернового пола, на него монтируется утеплитель — с заглублением на 3-5 см от верхнего края лаги. Сверху кладется пароизоляция, а на нее «пирог» из доски, ОСБ-плиты, подложки и финишного декоративного покрытия.
- Сборка каркаса дома. Она производится из деревянных или металлических стоек, расположенных вертикально. В дачном домостроении чаще всего применяют обычные бруски, выставляемые сначала по углам, а потом и в проемах. Не стоит забывать о вертикальных стойках для окон и дверей. Все элементы соединяются верхней обвязкой, выставляются по уровню, укрепляются укосинами, при необходимости могут монтироваться дополнительные поперечные элементы.
- Формирование потолочного каркаса. Он создается на основе готовой верхней обвязки.
- Создание кровли. Она может быть односкатной или двускатной — это решение применяется для домов с мансардой и двухэтажных построек. Формируется стропильная система. Остальные работы — по настилу сплошного основания, укладке кровельных материалов выполняются только после завершения обшивки стен.
- Монтаж плит, щитов или другой основы для наружных стен. Они крепятся на обрешетку, выбираются оконные и дверные проемы. Затем выполняется наружная отделка фасада.
- Утепление. В стены дома закладываются изоляционные маты или плиты. Монтируется пароизоляция. Выполняется обшивка фанерой или гипсокартоном.
Отделка стен внутри. Ее выполняют исходя из выбора стиля оформления интерьера, индивидуальных предпочтений владельцев.
Не стоит забывать о прокладке коммуникаций, установке дверей и окон в проемы. Все эти этапы тоже отнимают время, требуют внимания. Гораздо проще проходит процесс работы в случае, если используются готовые домокомплекты из СИП-панелей.
Особенности летних домиков
Каркасные дома при наличии фундамента могут возводиться буквально за пару недель, а в случае с небольшими дачными постройками – за несколько дней. Стоимость такого дома в несколько раз ниже, чем кирпичного или из плит. Если фундамент возведен, то монтаж самого каркаса, обшивки и отделки может производиться практически круглогодично. Дом представляет собой легковесную конструкцию, которая редко весит более 2 тонн, а маленькие дачные домики весят не более тонны. Под такую постройку подойдет самый дешевый фундамент – свайный, зубчатый, незаглубленный. При ремонте фундамента дом может быть приподнят или вообще перенесен на новый фундамент. Все части дома, включая каркасные балки, доски, щиты также имеют небольшой вес, и могут быть подняты без крана. Почти все работы можно выполнять вдвоем, а при должном опыте – и в одиночку. Так как каркас обшивается листами ОСБ, мы в конце возведения дома имеет ровную поверхность внутренних и внешних стен, на которую легко ложится гипсокартон или другой материал.

Типовой проект каркасного дачного домика с террасой
Так как все элементы этого дома состоят в основном из дерева, низкий вес отдельных элементов не дает большой нагрузки на фундамент. Нагрузка распределяется более равномерно, поэтому можно дом может быть оснащен террасами, балконами, практически не влияющими на возможность появления перекосов.
Типовые домики могут быть как одноэтажные, так и двухэтажные, оснащены мансардой или террасой.

Каркасный дачный домик с боковой террасой на удлиненной стороне дома
Не секрет, что наши предки на протяжении многих веков жили именно в деревянных постройках. В таких домах атмосфера сама по себе хорошая, сказывается и экологичность дерева, и его связь с природой. Деревянные дома – это, можно сказать, наше культурное наследие. Даже Москва когда-то была полностью деревянной.
Тепловые характеристики дачных домиков из дерева также радуют. Они хорошо сохраняют заданную температуру, так как стены почти не нагреваются. Эта способность позволяет сэкономить на отоплении значительные суммы. Однако при отсутствии кондиционера в летний зной в домике может быть жарко. Держите в таком случае окна закрытыми днем, а открывайте их, когда жара спадет, вечером.

Оригинальный проект каркасной дачи
По поводу длительности эксплуатации давно идут споры. Люди, далекие от каркасного строительства, часто говорят о том, что такие дома не прослужат более 30 лет. Однако практический опыт говорит об обратном. Срок эксплуатации каркасного дома не меньше, чем кирпичного. Сегодня в деревнях до сих пор функционируют каркасные дома, построенные более 70 лет. В то время они возводились без современных материалов, утеплителей, гидроизоляции, и все равно до сих пор используются. Роль утеплителя играла стружка, стены обмазывались мазанкой, а каркас укреплялся дранкой. Сегодня технология гораздо совершеннее, синтетические материалы столь же безопасны, но при этом срок их эксплуатации вырос в разы. Можно с уверенностью сказать, что каркасный дом может использоваться не менее 100 лет. Опыт Финляндии и Канады только подтверждает этот факт.
Особенности построек для дачи
Постройки для дачи имеют свои особенности
Летние домики используются только в определённый сезон, поэтому необходимо обратить внимание на следующие нюансы строительства:
- Если в доме проведена вода, а зимой в нем жить не планируется, необходимо сливать воду в период заморозков. Замерзшая без отопления вода в доме может привести к разрыву трубы.
- Методы безопасности. Если зимой дом будет использоваться как место хранения дачного инвентаря, подумайте о мерах безопасности от воров – возможно, имеет смысл установить решетки на окна или сделать ставни?
- Если в дом проведен свет, можно использовать масляные электрические батареи. При небольших заморозках нахождение на даче будет комфортным.
- Дома, которые строят на дачах, нуждаются в хозяйственных пристройках – в них удобно хранить дачные инструменты, без которых дача – не дача.

Кровля каркасно щитового домика лежит на деревянном каркасе
Кроме того, надо признаться, что деревянные здания, в которые сезонами никто не проживают, приходят в негодность быстрее, чем жилье для постоянного пользования. Поэтому они должны быть хорошо гидроизолированы, все стыки должны быть пропенены, а древесина должна быть высокого качества. Перепад температур приводит к трещинам, а плохая вентиляция, которой отличаются все каркасно щитовые постройки, к скапливанию влаги внутри утеплителя и на стенах.
Однако при этом постройки из дерева склонны к меньшему промерзанию, чем блочные. Они дольше сохраняют комфортную для проживания температуру, и нуждаются в гораздо меньшем обогреве для поддержания тепла. О других особенностях дачных каркасных домов читайте в нашей статье.

Каркасно-щитовой домик своими руками — на столбчатом фундаменте
Шаг 3: Каркасные стены
Каркасный дом своими руками собирают из отдельных элементов, раскраивая и подгоняя их на строительной площадке. Возможен монтаж более крупных секций или даже целых конструкций, заготовленных на заводе.
Способы сборки каркаса
Быстровозводимые здания сегодня строят способами:
- традиционным — последовательно собирают каркас из стоек, ригелей, укосин, утепляют стены, монтируют обшивку;
- методом «канадской платформы» — секции заготавливают горизонтально на черновом полу и выставляют их в проектное положение;
- из СИП-панелей — крупные элементы, раскроенные на заводе, собирают на площадке при помощи соединительных брусьев и полиуретанового клея;
- по немецкой технологии «фахверк» — доски каркаса, являющиеся одновременно декоративной отделкой, располагают снаружи утеплителя;
- по шведской технологии — каркас монтируют из двух обрешеток, первая предназначена для установки утеплителя и крепления внешней отделки, вторую используют для прокладки коммуникаций и монтажа внутренней облицовки.
Монтаж каркаса способом «канадская платформа».
В частном строительстве для сборки своими руками чаще применяют классический способ, не требующий сложных монтажных работ и затрат на подъемную технику.
Установка и сечение стоек
Этапы монтажа стоек каркаса включают:
- Разметку на покрытии чернового пола мест установки стоек. Обычно шаг составляет 60 см. Это удобно для последующей укладки плит минеральной ваты. В двухэтажных зданиях расстояние уменьшают до 40 см.
- Нарезку опор из сухой обработанной доски толщиной 50 мм. Сечение подбирают по расчету на несущую способность.
- Установку стоек в углах, выравнивание, закрепление временными укосинами.
- Монтаж промежуточных элементов.
- Соединение опор брусом верхней обвязки.
- Усиление оконных и дверных перемычек досками, уложенными на ребро. Если этого не сделать, при прогибе произойдет защемление рамы, возникнут трещины на стеклах, отделке фасада и внутренних поверхностей стен.
- Укрепление каркаса укосинами из досок 100х25 или 150х25, врезанными в верхнюю и нижнюю обвязку, стальными перфорированными полосами, горизонтальными перемычками. Дополнительное усиление не требуется, если каркас обшивают жесткими листами ОСП, многослойной фанеры.
- Обшивку лобовой доской балок верхней и нижней обвязки. Рекомендуется проложить слой базальтовой ваты для утепления конструкции.
Для подбора сечения стоек суммируют все нагрузки, действующие на несущий каркас. Если здание небольшое, то при высоте до двух этажей размеры бруса принимают:
- для наружных стен — 150х50 мм, 200х50 мм;
- для внутренних перегородок — 100х50 мм.
Прочности таких сечений вполне достаточно для восприятия вертикальных и боковых нагрузок. При теплотехническом расчете может оказаться, что для размещения теплоизоляции требуется большая, чем расчетная, ширина стоек.
Увеличивать сечение несущего бруса нецелесообразно. В этом случае утеплитель укладывают в 2 слоя — один между стойками каркаса, второй — по наружной обрешетке с перевязкой. Такая компоновка поможет избежать теплопотерь через деревянные элементы, углы, обрамления проемов.
Укосины или раскосы
Укосины или раскосы устанавливают временно для придания устойчивости каркасу при монтаже или постоянно, чтобы конструкция сохраняла геометрию длительное время.
Укосины в каркасе устанавливают наклонно.
Чтобы постоянные укосины выполняли свою роль — обеспечивали жесткость каркасу, при их установке соблюдают правила:
- элементы монтируют с наклоном 40°-60°;
- толщина укосин — не более 1/4 от высоты сечения стойки;
- крепление раскоса к обвязке — только врезкой, при других видах сочленения усыхание древесины ведет к потере устойчивости узла;
- укосины врезают заподлицо со стойками, обвязками и перемычками;
- на одной стене устанавливают не менее двух раскосов с наклоном в разные стороны;
- к стойкам по длине прибивают 2-3 гвоздями.
Вместо укосин в углах каркаса можно использовать листы ОСП-3 12. Диагональная жесткость конструкции будет обеспечена.
Углы каркасного дома
Угол — одно из проблемных мест в каркасном доме. Установка бруса без дополнительного утепляющего слоя приводит к образованию мостика холода. Дерево обладает более высокой теплопроводностью, чем минеральная вата, поэтому стена в углу помещения может промерзать.
Чтобы этого не случилось, конструкции формируют одним из четырех способов:
Из двух стоек. Стык двух стен усиливают отделочным уголком.
Первые два способа более технологичны, но теплоизоляционные качества их ниже. В стыке двух стен остаются сквозные щели, которые очень трудно заделать.
Плюсы и минусы
Каркасные дачные дома изготавливаются по тем же технологиям, что и объекты для постоянного проживания. Неудивительно, что они пользуются заслуженной популярностью среди владельцев садовых участков. У объектов, собираемых из готовых деталей на деревянном или металлическом каркасе, есть свои достоинства и недостатки. К очевидным плюсам можно отнести такие.
- Доступную стоимость. Можно найти предложения по готовым комплектам в желаемой ценовой категории. Под каркасные дома не нужен массивный фундамент, в них можно сэкономить на утеплении, если дача будет использоваться только в теплый сезон.
- Экобезопасность. Каркасные дома изготавливают из материалов, не выделяющих в атмосферу вредных веществ. Здесь используется дерево, металл, гипсокартон, утеплитель в виде минеральной, базальтовой ваты или пенополиуретана.
- Быстрое возведение. От монтажа фундамента до внутренней отделки готового дома проходит не более 8 недель. Услуги монтажников обычно уже включены в стоимость. Ждать усадки тоже не придется — конструкция ее не предусматривает.
- Отсутствие сезонных ограничений. Поскольку при возведении здания отсутствуют «мокрые» этапы работ, можно строить дачу даже с наступлением холодов.
- Легкость доработки. Любой каркасный дом для дачного строительства можно дополнительно утеплить, адаптировав его для круглогодичного проживания.
- Высокую герметичность. Потери тепла в каркасных домах минимальны, можно оптимизировать процессы их обогрева с минимальными затратами.
- Универсальность планировки. Обычно ее можно менять или выбирать среди нескольких готовых вариантов.
- Удобство прокладки инженерных коммуникаций. Они легко маскируются под деталями обшивки.
Минусы дачных каркасных домов тоже вполне очевидны. Они не столь прочны, как каменные, кирпичные или деревянные — из бревна, бруса. Антивандальные свойства таких объектов минимальны, а звукоизоляция существенно снижена, но проблема решаема — нужно лишь выбрать подходящие отделочные материалы. Вентилируемость конструкции тоже мала, придется решать ее установкой вытяжных систем или сквозным проветриванием.
Выбор типа кровельной системы
Если с возведением каркаса и стен деревянного дома проблем не возникает, то по строительству кровли, как правило, появляется целый ряд вопросов. Они касаются как выбора типа стропильной системы, так и самого устройства и фиксации ее основных элементов. Каркас крыши является одним из основных частей каркасного дома, так как на него идет основная нагрузка с крыши (стропила – важнейший элемент). Крыша каркасного дома чаще всего делается из деревянного бруса, она может иметь различный вид, уклон и принцип возведения.
Для того, чтобы определиться с типом кровельной системы, необходимо учитывать размеры и особенности самого здания. Крыша каркасного дома в первую очередь зависит от размера постройки и предпочтений владельца. Если здание будет иметь ширину более 6 метров, то для установки надежной кровли необходимо еще во время заливки фундамента сделать внутренние несущие стены – одну или две. Кровлю можно возводить своими руками.
Висячая стропильная система выбирается для небольших зданий. При таком типе, стропильные ноги каркасного дома опираются только на боковые стены дома. В результате, при большой ширине здания под тяжестью кровли возникает весьма опасный провис стропил.
Чтобы снизить риск провисания, для зданий шире 6 метров устраивают наслонную стропильную систему, при которой кровля имеет дополнительный упор на внутренние несущие стены. Как правило, это либо одна стена по центру, или две параллельные.
Составляющие стропильной системы и кровли
Стропильная система – это скелет крыши, от которого зависит безопасность жителей и надежность всего дома.
Ее можно возвести своими руками, используя следующие материалы:
- доска обрезная 50Х150 мм
- брус 150Х150 мм
Все деревянные элементы должны быть в обязательном порядке обработаны огнебиозащитой и хорошо высушены. Лучше всего подходит древесина камерной сушки (или технической, как ее еще называют).
Идеально подходит дерево хвойных пород, в которых присутствуют смолы, создающие дополнительную защиту от короедов.
Стропильная система состоит из следующих элементов:
- Стропильный ног.
- Прогонов.
- Стоек.
А сама конструкция каркаса крыши включает в себя еще чердачное перекрытие, решетку и обрешетку
Обратите внимание, что помещение под крышей может использоваться собственно как чердак, а может быть устроено как мансордное жилое помещение. Если на чердаке будет нежилое пространство, то для перекрытия пойдет доска 50Х150 мм
Если же предполагается обустройство жилой мансарды или вы планируете в будущем вариант перевода чердака в жилое помещение (например, в кабинет), то для перекрытия необходимо брать брус 150Х150. Брус будет укладываться на мауэрлат, что сделает перекрытие весьма прочным.
Обрешетка выполняется, как правило, тоже брусом, однако выбирается сечение 40х40 или 50х50 мм. Такая толщина достаточна для того, чтобы выдержать любой вид кровельного материала.
При приобретении любых деревянных элементов, обратите внимание на качество. Брус должен быть ровным, без изгиба, без темных пятен и плесени
Даже небольшое искривление бруса может повлечь большие сложности при его укладке и последующих работ.
При работе со стропильной системой вам также понадобятся металлические шпильки (чтобы прикрепить брус к мауэрлату) с резьбой, крепежные элементы (саморезы, шпильки диаметром 8 и 10мм) для соединения стропил между собой, оцинкованные гвозди, скобы и кронштейны для крепления стропильных ног к мауэрлату.
Работы над кровлей начинаются с устройства мауэрлата своими руками. Мауэрлат в каркасном строительстве часто заменяется на брус внешней обвязки, то есть брус, соединяющий все четыре стены дома в одну конструкцию. В качестве мауэрлата или верхней обвязки используется брус 100х150 или 150х150 мм. Подробнее об устройстве бруса верхней обвязки читаем здесь.
Когда эти работы выполнены, можно начинать выводить фронтон и приступать к устройству стропильной системы. Все работы могут выполняться своими руками, это не так сложно, однако один-два помощника вам все-таки потребуется.
Вся обработка стропильных балок перед сборкой и установкой производится на земле. Желательно выбрать ровную площадку, на которой можно гораздо легче обрезать брус в нужный размер, сделать выпилы или пазы, просверлить крепежные отверстия. Когда элемент готов, его можно поднимать наверх и приступать к фиксации.
Типы фундаментов (кратко)
 Ленточный тип фундамент
Ленточный тип фундамент
После анализа типа грунта следует понять, какой вид основания подходит для каркасного дома. Фундамент – важнейший элемент, который впоследствии практически невозможно изменить, от правильности его расчёта зависит надёжность всей постройки. Специалисты руководствуются при разработке оснований зданий СНиП 2.02.01-83.
Разновидности фундаментов:
- ленточный – рекомендуется для тяжелых домов, а также тогда, когда в доме будет оборудован погреб. Особенности: подошву основания делают на 20-30 см ниже, чем расположен промерзающий грунт. Можно использовать как заливку раствором, так и готовые блоки, что ускоряет процесс постройки;
- монолитный (плитный или плавающий) – в виде единого элемента. Такой тип годится для небольших и лёгких домов на нестабильных грунтах;
- столбчатый – делают под малыми и средними постройками. Отличается от ленточного меньшим расходом стройматериалов: столбики устанавливают под несущими стенами и важными узловыми соединениями – то есть, там, где нагрузка будет максимальной. После внедрения столбов в землю их обвязывают балками;
- фундамент на винтовых сваях – основывается на стальных элементах, которые вкручиваются в землю. Хорош для неровных участков, так как позволяет устанавливать сваи на разную глубину, а за счёт их верхних концов основание (система балок) подгоняется под нужный уровень;
- шведская плита – состоит из нескольких слоёв: песок, слой пенополистирола, арматурный каркас. Коммуникации допускается проводить внутри;
- комбинированные типы – рекомендуются для использования на нестандартных грунтах, часто их предпочитают частные строительные фирмы. Плюс таких фундаментов в том, что можно получить уникальное основание под конкретный вид почвы, а также снизить расходы, применяя разные материалы.
 Столбчатый фундамент
Столбчатый фундамент
Стандартный фундамент – прямоугольник со сторонами 6х6 метров, 6х8 или 6х4. Для возведения потребуется отдельный чертёж.
Обзор домов от производителей
Многие компании, изготавливающие каркасные дома недорого, обеспечивают их поставку по всей стране. В этом случае можно выбирать не только дешевые комплекты, но и более сложные, дорогие, больше похожие на объекты для круглогодичного проживания.
            
Прежде чем отдать свои деньги подрядчику, стоит ознакомиться с представленными на рынке фирмами. Топ лучших из них поможет не ошибиться с принятием решения.
СК «Теремъ». Не самый дешевый подрядчик, но точно наиболее известный и популярный. Фирма работает со многими регионами, ее проекты можно увидеть на профильных выставках. Самый дешевый дачный дом обойдется клиентам в 553000 рублей. Работы ведутся под ключ, доплачивать не придется.










Конечно, строительством дачных каркасных объектов занимаются многие фирмы. Но лучше с самого начала довериться производителю, который отвечает за качество и надежность своей продукции, не срывает сроки доставки и сборки комплекта на участок.
Нижняя обвязка и пол
Для защиты обвязки от воздействия влаги снизу, на фундамент укладывается рубероид или гидроизол. Можно использовать битумную мастику, но она будет дороже рулонного материала. Иногда материалы комбинируют: один раз фундамент покрывается мастикой, а сверху укладывается гидроизоляция.
Сборка каркасного дома начинается с обвязки. Для нее используются доски сечением 15х5 см или брус 15х15 см. Доски укладываются по периметру и выравниваются по внешнему краю фундамента. В нужных местах просверливаются отверстия под шпильки. Второй слой досок укладывается таким образом, чтобы перекрыть нижние стыки досок. Это придает конструкции дополнительную прочность. Проще и быстрее монтаж бруса, но цена его выше, чем досок. К тому же общая несущая способность двойной доски будет выше, чем у одного бруса.
Так выглядят закрепленные лагиИсточник goroddomov.ru
На обвязку устанавливается доска 20х5 см на ребро. Она также выравнивается по внешнему краю фундамента и крепится саморезами. Лаги монтируются из досок такого же сечения. Крепятся саморезами или специальными уголками. Шаг установки – 30–60 см.
Следующий этап – утепление
Здесь важно подобрать качественный утеплитель
Стыки с лагами обязательно заделываются герметизирующими материаламиИсточник 9dach.ru
Для устройства чернового пола используется обрезная доска 10х2,5 см. Поверх нее укладывается фанера толщиной 0,5–0,6 см. Можно укладывать листы фанеры сразу без настила из досок. В этом случае толщина листов должна составлять минимум 1,5 см. Такой вариант быстрее, но в некоторых случаях дороже. Подобно кирпичной кладке, фанера укладывается в разбежку. Промежуток в несколько сантиметров между листами компенсирует расширение при повышении влажности воздуха.
Четвертый этап строительства: полы
На первом этаже чаще всего устраивают полы по грунту. Что это значит? Технология заключается в следующем. Убираем первоначально плодородный слой грунта, и на его место засыпаем слой гравия. Он необходим для дренажа, так как влага будет просачиваться внутрь и меньше контактировать с цементной стяжкой. По грунту делаем слой песка в 30-50 см в зависимости от высоты вашего фундамента. Проводить утрамбовку своими руками или с помощью техники. В результате слой песка должен располагаться на 5 см ниже уровня фундамента, чтобы избежать мостика холода и промерзания по углам.

Схема черновой стяжки по грунту в каркасном доме
Далее мы выполняем черновую стяжку, используя жидкий цемент. Если вы берете цемент чуть более жидкий, чем для устройства фундамента, вам не придется ровнять его инструментами, так как под действием силы тяжести цемент сам равномерно распределиться по земле. Самое главное – чтобы земля была ровной, иначе жидкий цемент стечет в одно место.
Когда черновая стяжка высохнет, можно продолжать устройство пола. Для этого выполняем гидроизоляцию пленкой, поверх которой раскладываем утеплитель для пола. Поверх утеплителя используя сетку можно закрепить трубы теплого пола (жидкого или электрического). И залить чистовую стяжку.
Если вы не хотите использовать цемент в устройстве пола (к примеру, если стройка проходит зимой), вам поможет технология устройства деревянных каркасных полов на основе лаг. Как устроить такой пол, смотрите на схеме:

Устройство пола с помощью лаг
Для его обустройства необходимо:
- доска 25х100
- брус 200х200
- брус 70х195
- доска 50х150
- ветрозащита
- утеплитель
- осб
- подложка и ламинат или плитка
Больше информации об устройстве пола в каркасном доме вы найдете здесь.
В чем состоит особенность каркасных домов?
Любая технология строительства имеет как свои плюсы, так и минусы. В одном выигрывает, в другом – теряет. Каркасная технология не является исключением. В данной ситуации необходимо четко понимать, какой из недостатков легко исправим, или не так значителен, а какой – доставит в будущем немало хлопот.
На рынке недвижимости каркасные дома заняли свою весомую чашу, и полюбились многим благодаря своей низкой стоимости, большой скорости постройки и высокому качеству. С помощью данной технологии клиент может получить желаемый дом в короткие сроки, а заказчик – возвести строение быстро, качественно и надежно.
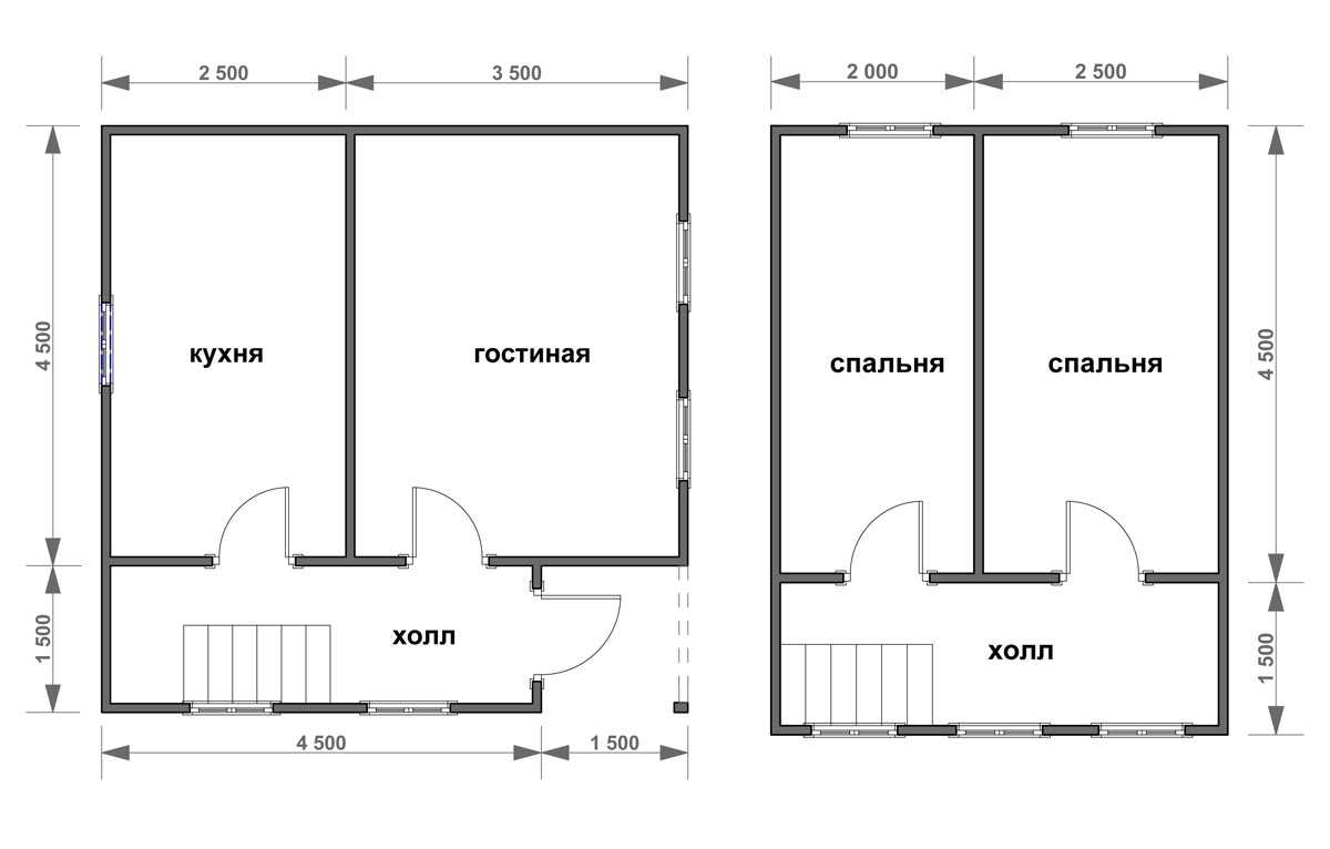
Широкой популярностью пользуются именно небольшие дома, поэтому подрядчики, в лице профессиональных строителей, архитекторов, дизайнеров, имеют свои наработки в планировании каркасного дома размером 6х6. Это то, что касается стандартных проектов.
Во время обсуждения с клиентом его предпочтений готовятся доработки в уже готовый дом или разработка абсолютно нового уникального проекта, который будет соответствовать именно вашим потребностям и предпочтениям. В таких проектах, когда ориентир установлен на желание заказчика, происходит перепланирование пространства, которое составляет полезную площадь таким образом, что оно может увеличиваться или уменьшатся в размерах.
Как ни странно, если они заказывают одноэтажную постройку, то планировка почти совпадает с обычной однокомнатной квартирой. В таком помещении свободное пространство достаточно ограничено, и используется не рационально, поневоле создавая тем самым неудобства хозяевам. При такой конструкции в одной комнате трем взрослым будет находиться не очень комфортно. Такую планировку клиенты выбирают в том случае, если подрядчик не смог донести смысл того, что можно составить чертеж такого дома, который будет соответствовать именно его требованиям.
Полезная площадь дома значительно увеличивается добавлением мансарды, которая, по сути, является одновременно и вторым этажом, и кровлей. Как вариант, можно рассмотреть пристройку просторной веранды. Она не займет много времени и финансовых ресурсов, поскольку является не отапливаемым помещением, и не требует вспомогательных материалов для утепления.
Дополнительным преимуществом любого каркасного дома 6х6 является то, что при его постройке применялись цельные щитовые элементы, которые уменьшают в разы количество стыков и, соответственно, щелей между брусьями. Поэтому «мест продувания» будет меньше, как и затрат на их прогревание, а дом станет теплее и уютнее.
Дом размером 6 на 6 достаточно небольшой. Это позволит организовать оставшееся пространство на земельной территории по своему усмотрению: разбить сад или огород, установить бассейн, открытую беседку или просто красиво оформить ландшафтный дизайн.































![[инструкция] строим каркасный дом своими руками | фото](http://max-shops.ru/wp-content/uploads/e/d/0/ed0a87db49b78a45ac87489f9df77843.jpeg)


















![[инструкция] строим каркасный дом своими руками | фото](http://max-shops.ru/wp-content/uploads/2/a/a/2aa561cb766f4746b94bab63a63a6d11.jpeg)
